新浪财经 股票

北京城建,李兆彦背水一战

乐居财经

关注

文/北京进深 林振兴

“房子买了,有飞机噪音怎么办?”这是国誉燕园一期业主最近看房后,在社交媒体上发出了求助。

这位女业主是在下午6点半到7点左右过去项目,据她本人描述,“得有十几架飞机经过,是刚起飞不久或者要降落的那种”“2-3分钟一架,距离还挺近,声音大”

一位热心网友解答了她的疑问,“正好在首都机场进出港的路线上”。

该业主是在去年底买的国誉燕园一期107平特价房,约3.35万元/㎡。但目前,一期成交均价已经降到了3.30万/㎡,约为指导价的85折。

眼下,对于一期业主而言,除了飞机噪音问题,不淡定的是被国誉燕园二期背刺了。 

上半年最后一天,国誉燕园二期——朗润取得了预售许可证。距离拿地,已过去快一年时间。

由于慢吞吞,朗润等来了“好房子”东风,设置了南北双阳台。

为何朗润要刻意放慢了推盘节奏?

这是项目董事长李兆彦和总经理李延国做的共同决定,他们想给一期出货留出一个缓冲期。

国誉燕园一期共1788套住宅,销售指导价3.9万/㎡,2022年11月取证。目前网签1091套,去化六成

但随着昌平“好房子”项目越来越多,国誉燕园一期也愈加失去竞争力。

今年上半年,在昌平区住宅项目成交金额排行榜中,国誉燕园一期排第15名,网签53套,成交金额1.64亿元,操盘手为王风华。

二期朗润有“好房子”设计的户型,对一期产品形成降维打击。指导价相同的前提下,一期剩余的将近700套房源该如何去化?

不过,因为拖延,朗润等来了昌平楼市的巨量供应——有上万套,堪比丰台。

01

朗润首批次预证房源为东区12栋楼,共828套住宅,销售指导价3.9万元/㎡。

仅4栋楼均价超4万/㎡,为10#、11#、12#和17#楼。

11#楼均价最高,为4.08万元/㎡。其中次顶层房源拟售价4.1万/㎡,为顶配134㎡户型。

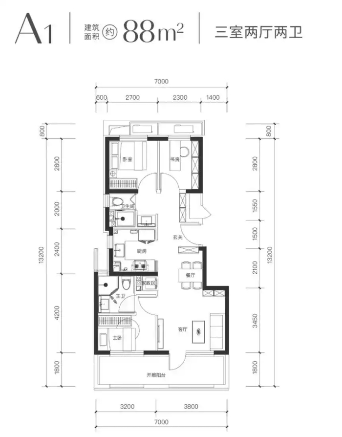
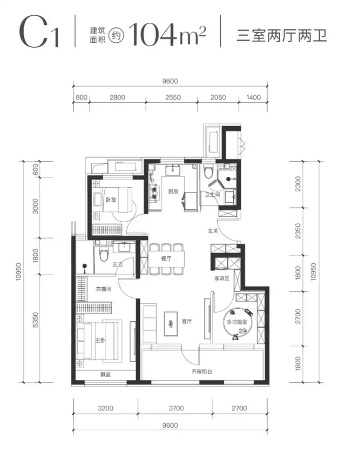
朗润户型面积段67-134㎡,主力为88㎡/104㎡三居、127㎡四居,产权得房率在79%-86%区间。

而且户型越大,产权得房率越高。

最低的位于4#和1#,为88平和94平户型,产权得房率分别为79.68%、79.81%;最高位于11#,为134平户型,产权得房率接近86%。

在户型结构上,二期88平和一期88平最大区别是,客厅-餐厅与主卧-主卫之间互换了位置。此外,二期优化了家政区和次卫的设计。

在赠送上,朗润88㎡是三居两卫,南向7米长通面宽阳台,1.8米进深,算下来有6.3㎡赠送;北向还有5米长的设备平台 防火挑檐,进深0.8米,总计4㎡面积全赠送,扩展了北向两个卧室的空间。

但北面赠送后,最小卧室才8.28米,放大点的床可能就放不下大衣柜,影响居住体验。

值得注意的是,朗润面积更大的104平三居户型,阳台和设备平台的尺度并没有明显加大,南向阳台未做到通面宽,主卧换成了飘窗,实际空间增幅降了下来。

一期国誉燕园108平户型,就比朗润104平三居多了4平,却能做到四居。此外,朗润104平开门直对北向次卧,导致卧室的隐私受到侵犯。

在同面积段的127平,朗润与国誉燕园要面临正面交锋,两个户型的结构也一致。

面宽上,朗润127平南向总面宽10.4米,其中客厅面宽4米,不及国誉燕园南向总面宽10.5米,其中客厅面宽4.2米。

朗润127平四居是四叶草格局,南向三开间。阳台仅比88户型多了10厘米,赠送6.39㎡;主卧面宽3.3米飘窗,赠送1.65㎡;北面两个分开的设备平台,总计4.56㎡的。由此计算,建面127户型合计赠送面积约12.6㎡,扩容不到10%。

地块资质不如一期的情况下,二期在项目设计上不仅没啥记忆点,甚至有一些设计让外界直呼看不懂。

在11#和16#、17#之间,有一块空地。

按理说,做景观花园或者儿童设施都不错,但城建却弄了一个绿化地上停车场,可以停26辆车,这样也使得小区没有完全做到人车分流。

甚至二期朗润(44.2646亿元)在总投资上也不如一期(47.5863亿元)。

时间回溯至2024年7月,城建发展全资子公司北京城建兴荣房地产开发有限公司(简称“城建兴荣”)以19.86亿元竞得二期朗润所在地块。

二期住宅部分的楼面价约为1.31万元/㎡,略高于一期的楼面价1.2968万元/㎡。

城建兴荣成立于2022年,注册资本5000万元,法人兼董事长为李兆彦,经理为李延国。它也是国誉燕园一期的项目公司。

截至2024年3月底,城建兴荣向工商银行怀柔支行的借款余额为10.9亿元,借款日期为2022年12月27日,还款日期2027年12月26日,担保方式为抵押

02

就算没有二期朗润,国誉燕园一期的去化,也很让李兆彦和李延国闹心。

今年1月9日,一期网签1041套,均价33096.21元/㎡;

将近6个月过去,目前才1091套,多了50套,平均一个月还没卖出10套。但,它的网签均价却很坚挺——33046.48元/㎡。

城建发展年报则披露,去年国誉燕园一期可供出售面积212,891㎡,已售(含已预售)面积117,679㎡,结转面积0㎡,结转收入金额0元,报告期末待结转面积216,847㎡。

随着二期的到来,李兆彦和李延国或许将采取“降价走量”的策略。

与国誉燕园一期户型相比,二期在空间赠送上十分豪爽,内嵌阳台、飘窗、设备平台。

相较之下,国誉燕园一期的户型,南向只有飘窗,没有阳台;北向有一个挑空平台所变的开敞阳台。如此一来,二期朗润直接“背刺”了一期。

当然,国誉燕园一期也有自己的闪光点,它的容积率1.8、绿化率40%,优于二期朗润容积率2.4、绿化率30%。

2022年5月,城建发展以底价约22.6亿元拿下昌平区六环路土城出口土城新村改造土地一级开发项目A-07地块,打造一期项目。

目前,国誉燕园一期网签成交额33.36亿元

看似已收回了地价款,但其实一期的总投资额高达47.5863亿元,李兆彦和李延国还有很长的一段路需要走。

2024年度,国誉燕园一期的实际投资额是4.99亿元,在建建筑面积267,685平米,已竣工面积0平米。

然而在2024年6月9日 ,国誉燕园一期建设中突发高坠事故,两名安装工人死亡

“6·9”安全事故调查报告显示,该项目总包单位为北京城建七建设工程有限公司,专业分包单位为北京城建汇友安装工程有限公司(简称“城建汇友”)。

城建汇友的大股东是罗凯暄,持股92.5%,它也是城建发展的关联公司,二者背后股东都为北京城建集团。

最终调查组认定,本起事故是一起因未严格落实专项施工方案、安全管理人员未到岗履职、作业人员违规作业而造成的生产安全责任事故,并对责任单位和人员提出了处理建议。

去年9月,城建汇友收到三张行政罚单,罚款共计75万元。

据了解,李兆彦同时也是北京城建新城投资开发有限公司(简称“城建新城”)的董事长。

城建新城成立于2006年,最早是在北京城建集团名下,于2014年转让予上市公司城建发展。目前,它名下只有2家子公司,包括了北京新城兴业房地产和北京城建嘉业房地产。

3月,城建发展总经理邹哲到带队到新城公司调研时强调,“国誉燕园继续在销售创新上下功夫;统筹好一二期销售节奏。”

前段日子,邹哲到国誉燕园永丰展示中心调研。

他强调,新城公司要充分认识当前所面对的形势和困难,发扬拼搏精神,继续抗压前行,紧紧围绕年度任务指标,全面抓好各项工作落地,

李兆彦的好搭档——李延国,他还是城建新城经理,城建兴悦置地项目经理。

大兴区黄村镇海子角村、辛店村是大兴新城最后两个城中村,20年来多次动议未能破题。李延国带领项目团队,一心扑在棚改上,前后长达八年,把最好的地块用于回迁安置房,按照商品房标准进行建设。

眼下,李兆彦和李延国得在昌平背水一战了。

加载中...