新浪财经 股票

浦发莲园周边老破小环绕,卖点在于价格和门口的18号线地铁站

乐居财经

关注

乐居财经 张林霞 上海浦发内中环,浦发莲园样板房即将开放,将推建面约99-193㎡3-4房,参考均价9.8万/㎡。

项目地块拟建2幢11层高层住宅、4幢14层高层住宅、3幢16层高层住宅、1幢7层多层住宅、2幢2层配套用房以及垃圾房电站等附属设施。

浦东北蔡可以说是整个上海中环的价格洼地,在徐汇摸到17万、静安大宁14、杨浦定海13、新杨思12的行情下,莲园9.8万的价格性价比高。

但是,作为北蔡城中村改造的地块之一,项目周边的城市界面一般,老破小占据了主流,浦发莲园卖点好像只有价格和门口的18号线地铁站。

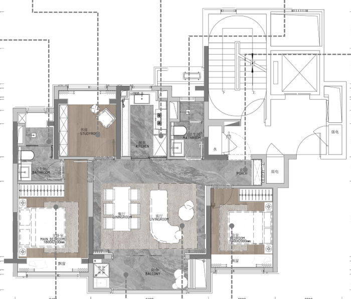
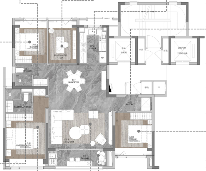
项目产品面积主要有建面约99-133-140-193㎡3-4房,户型图如下:(过程稿,仅供参考,最终以实际为准)

建面约99㎡A户型

建面约99㎡B户型

建面约99㎡G户型

建面约99㎡H户型

建面约133㎡户型

建面约140㎡户型

据乐居财经查阅,2024年4月,上海浦发集团通过协议方式拿下关于浦东新区北蔡社区Z000502编制单元2-01a街坊2-01a-11b地块(“城中村”改造项目北蔡镇老集镇地块)。

加载中...