专题 | 住宅产品的卫生间设计趋势
卫生间是满足人们日常生理需求比不可少的功能空间,最能彰显居家生活的品质;此外,卫生间作为房企全装修交付的两大重点空间之一,也最能体现其精装修模块的创新升级。本文中,我们重点聚焦住宅产品在卫生间数量、结构、功能规划等方面的变化,总结出房企对卫浴空间的定位与设计优化方向,为产品力发展提供建议。
文/克而瑞产品力研究中心
01
住宅产品的卫生间数量变动趋势
1、主力户型卫生间数量配比增加
卫生间数量与住宅的面积、房间数量密切相关,从三至四房改善居住类产品的规划方案看,卫生间增加的趋势可见一斑。
三房户型是市场上最主流的产品,2个卫生间的规划设计已成“标配”。以克而瑞产品系统的历年项目范围为样本,从历年趋势看,2019年,三房住宅中两卫设计的户型数量占比为92%,而近两年,其主力地位进一步彰显,2022年占比上升至97%。
四房户型占据市场成交的比例持续增加,增加卫生间数量也成为房企提升户型档次的重要方式。根据克而瑞产品库数据统计,过去几年,四房住宅中,两卫户型占比维持在七成左右。作为房企布局高端改善项目的重点研发对象,三个卫生间的户型占比稳健增长,从2019年的14%提升3个百分点至2022年的17%。尤其是对于多孩家庭多代同堂的居住模式,多一个卫生间能够有效减少日常生活摩擦、大大增加居住幸福感。
2、创新的0.5卫成为平衡性价比和使用需求的卫生间解决方案
为提升居住舒适度,同时具备沐浴、入厕、洗漱功能的完整卫浴空间当然是最佳选择,但在日常生活中,沐浴需求并不紧急,但是洗手池和马桶的使用频率更高,尤其是在每日清晨,高峰时段会出现家人抢着入厕或洗漱的情况。因而,在房企的精心研发下,只有洗漱区和马桶区,没有沐浴区的卫生间被设计了出来,即我们通常所称的0.5卫。
0.5卫的设计主要出现在小户型产品中,主要针对刚需、刚改需求。这些家庭往往三代同堂,而居住的紧凑型三居室产品的卧室等主要功能间都面积有限,自然也不想浪费卫浴空间。能在节约建筑面积、降低购房成本的情况下,多半个卫生间即可较大程度地满足家庭成员的使用需求。
比如南宁美的天玥76㎡的紧凑型三居室产品,在具备全功能的公卫之外,在主卧内增加了一个仅有马桶和洗手台的半功能卫生间,不仅实现了主卧套房功能,更可以避免作息时间相近的两个人早晨上班、上学前争抢厕所的尴尬,用有限的空间给生活带来更多便利。
武汉正荣悦珑府89㎡的小三房产品对卫浴空间的利用率更高,该户型并未设计两个独立卫生间,而是设置了两个入厕功能区,其中一个较大的空间实现入厕和淋浴功能,洗漱区设计在公区内,与其他卫浴功能区相分离,而洗手池对面隔出来另一个独立马桶区。在繁忙的早晨,这样的设计可以在同一时间段完美应对两个人入厕、一个人洗漱的并行需求,这样的设计仅需为卫浴区增加约1㎡空间,可以说,是用最小的面积实现了卫浴功能性的最大化利用。
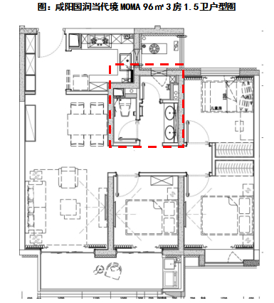
咸阳国润当代境MOMA的96㎡三房产品也以1.5卫的概念设计,但设计思路与之不同,主要满足多人同时洗漱的需求。其卫生间采用四件套三分离模式,即双台盆开敞区+独立马桶区+独立淋浴区,有容得下两个人洗漱化妆、一个人上厕所的空间,三个人同时使用也互不影响,同时并不显得拥挤。
除紧凑户型外,0.5卫的设计也逐渐被大平层产品所采用。北京金地华樾国际·领尚145㎡四房产品中,采用2.5卫双套房设计。主卧套房带三件套卫生间,满足主人私密专享需求;客卫干湿分离,使用方便;不带沐浴功能的0.5卫位于南向长辈套房中,既保证足够宽敞的居住空间,也方便老人起夜时的洗手间需求,设计更人性更舒适。

成都花样年·望花溪172㎡产品则是为三房户型配置的2.5卫,其设计理念更注重保持主客之间的界限感。除主卧套房带超大卫浴空间外,其余1.5卫均为客卫。其中一个全功能客卫位于两间次卧之间,在卧室门口就能到达,有效缩短了居家生活动线,方便居住次卧的家人使用。只有马桶和台盆的0.5卫设置在客厅与卧室区之间的过渡位置,可以主要在有客人来访时使用,既保证客人的隐私,也不会侵犯家人的私密空间。毕竟,常用的卫生间免不了收纳私人用品,会有一些个人隐私不方便客人看到。

成都花样年·望花溪172㎡产品则是为三房户型配置的2.5卫,其设计理念更注重保持主客之间的界限感。除主卧套房带超大卫浴空间外,其余1.5卫均为客卫。其中一个全功能客卫位于两间次卧之间,在卧室门口就能到达,有效缩短了居家生活动线,方便居住次卧的家人使用。只有马桶和台盆的0.5卫设置在客厅与卧室区之间的过渡位置,可以主要在有客人来访时使用,既保证客人的隐私,也不会侵犯家人的私密空间。毕竟,常用的卫生间免不了收纳私人用品,会有一些个人隐私不方便客人看到。
3、卫生间数量代表住宅档次,豪宅中甚至超过房间数量(略)
02
住宅产品的卫生间结构变化趋势
居住升级不仅体现在卫生间数量的增加方面,房企对于卫生间在户型中所处位置的考量也愈加完善。
1、全明卫占比稳步增加,南方趋势尤为凸显
卫生间在一套住宅中的位置首先影响的就是通风与采光效果。有开窗的卫生间采光好、通风佳,即我们通常所称的“明卫”;而处于内部、没有窗户的暗卫往往存在光线差、空气闷的缺陷,甚至存在发霉发潮的可能。因而,为了最大化居住舒适度,卫生间是否开窗成为购房者考虑的重点。
近几年,全明户型成为高品质住宅的重要进化方向,全明卫也是其中最重要的特征之一。以克而瑞产品系统的历年项目范围为样本,从历年趋势看,2019年,所有住宅中全明结构的户型数量占比为85%,2021-22年,这一比重已经稳步提升至89%左右水平。
南北方城市气候差异大,明卫设计在南方更为流行。根据克而瑞产品库数据统计,2022年珠三角城市的所有产品户型中,全明卫设计的户型占比为91%,高于其他区域,而环渤海区域城市有23%的户型有一个以上的暗卫。明卫配置的区域差异主要是因为南方城市整体气候潮湿,尤其是在梅雨季节,如果没有窗户通风,卫生间可能会有异味甚至霉菌,不利于身体健康;而北方城市较为干燥,一个暗卫甚至多个暗卫的户型也能被购房者接受。
低能级城市的卫生间配置更“内卷”。根据克而瑞产品库数据统计,三四线城市配有全明卫生间的户型占比超过九成,比一线城市高11个百分点。究其原因,主要是因为在下沉城市市场中,即使大户型的总价也相对较低,改善购房者更倾向于一步到位,因而更青睐于大户型,也对居住体验有更高要求。在竞争压力下,房企对户型设计细节尽可能优化,做到“人无我有,人有我优”,才能更好的抓住市场机会。
2、全明需求影响卫生间位置,户型规划具有较强规律性(略)
3、客卫多采用一字型结构,强调干湿分离效果
除了对全明结构的重视外,市场上住宅产品的卫生间的形状也表现出明显的规律性。多卫生间住宅主要可以分为公区使用的卫生间和卧室内使用的卫生间两种类型,这两种卫生间也有不同的侧重点。其中,公卫尤其强调干湿分离的规划设计。
公卫多采用一字型的规格,将洗漱区、入厕区和洗浴区布局在一条水平线上,多通过玻璃隔断实现干湿分离。比如长沙中海阅麓山98㎡2+1房2卫户型便是将公卫设计为长方形,淋浴区作为湿区在卫生间的最深处,用玻璃门分隔出来,不仅能防止洗浴时水花溅出,也不影响室内采光,有很好的通透性。
用玻璃隔断的分隔方式可以节省空间,但其使用效果也有一定的缺陷。为防止洗浴时高温与大量水气的聚集导致呼吸困难,玻璃隔断基本都不会到顶,上方空间空出来保证通风效果。因而,洗澡时产生的水蒸气合水雾仍会通过上方进入干区,影响干湿分离效果。
面积更大的卫生间还会在洗漱区与入厕区之间增加一段隔墙,从而避免收纳区受潮。合肥旭辉铂悦天汇150㎡户型公卫便是采用这样的干湿分离方式,其空间更大,用隔墙合房门将洗漱区独立出来,门内保留马桶和淋浴区。这样不仅能带来更好的干湿分离效果,更可以将洗漱台前的空间作为进入次卧的过道使用,实现紧凑户型通道空间复合利用,一举两得。
公卫还可以通过增加隔墙实现功能区多分离,干湿分离的效果更为完善。杭州中南棠玥湾164㎡户型的公卫结构偏长方形,各个功能区采用双一字型布局,主要通过隔墙和玻璃门隔成入厕、洗漱、淋浴、洗衣四部分功能区。考虑到使用频次的差异,洗漱区和入厕区在外,而淋浴区和洗衣区在内,内外仍有推拉式隔断。相比普通的干湿分离,这样的设计进一步提高了日常生活的使用效率、也能更好保持洗浴区之外干燥、卫生的空间环境。
4、主卫结构更多元,注重私密性,干湿分离并非主流(略)
5、彻底干湿分离的卫生间可实现双卫相近使用效果,但设计仍属小众(略)
03
住宅产品的卫生间功能进阶趋势
分析克而瑞产品库中“收纳设计”相关高频词,我们发现精装房还在提升卫浴空间功能性与舒适度方面持续发力。
(部分略)
1、适老化设计提升卫生间安全性便利性
虽然我们产品库中的产品基本都不是专为老年人设计的老年住宅,但普通住宅中已有初步的适老化设计。
郑州龙湖熙上的卫生间飘窗有助于让老年人安全、独立地洗浴。龙湖熙上104㎡户型卫生间飘窗位于淋浴房内,不仅可以随手放置洗浴用品,其高度更是可以作为坐凳使用,让老人洗浴时保持坐姿,避免滑倒。

其他项目也有更多实用性的设计。北京海淀幸福里卫生间内设置感应夜灯,靠近亮起,离开熄灭,灯光柔和守护睡眠,晚上不用开灯也能从容应对各种状况,在黑夜里倍感贴心。长春保利云上的公卫在坐便器旁边设有助力扶手,老年人入厕后起身更加轻松。佛山美的滨湖学府卫生间配置一键报警器、纳米人体存在探测器,以防意外情况发生。

2、适幼化设计塑造全龄段生活场景
要满足不同年龄段人群日常居住需求,卫生间设计的进化除了考虑适老性,也更重视满足低龄儿童的刚性需求。
佛山美的东樾湾的客卫正对儿童卧室门,缩短孩子使用卫生间的动线,也有更多贴心设计细节。市场上大部分产品卫生间镜子的高度主要取决于成人视平线高度,而美的东樾湾的低位魔镜下方则是尽量靠近洗手池台面,孩子洗脸、梳头时都能清楚看到自己。此外,浴室地柜自带“儿童凳”,台凳可抽拉,孩子垫着脚凳,就能独立洗漱、洗手了。

3、智能化卫浴快速普及
近年来,房企将智能家居的概念逐渐落地,卫生间也不例外。随着卫浴家居的智能化水平不断提升,房企也将越来越多的智能科技纳入进来,让居住者享有更健康舒适、更便利的卫浴体验。
呼和浩特金地·峯启未来淋浴器配有恒温花洒,洗浴水温更舒适,主卫还配有智能马桶,其余卫生间也预留插座,方便后期加配智能马桶的需求,为居者带来高科技卫浴空间。青岛金地华章卫生间主镜面为智能魔镜,以智能中控系统为核心,联动智能家居,同时可安装任何app软件,搭配环境系统、影音系统、安防系统,满足不用需求,实现简便、高效的生活方式。

其他项目也有更多实用性的设计。北京海淀幸福里卫生间内设置感应夜灯,靠近亮起,离开熄灭,灯光柔和守护睡眠,晚上不用开灯也能从容应对各种状况,在黑夜里倍感贴心。长春保利云上的公卫在坐便器旁边设有助力扶手,老年人入厕后起身更加轻松。佛山美的滨湖学府卫生间配置一键报警器、纳米人体存在探测器,以防意外情况发生。

2、适幼化设计塑造全龄段生活场景
要满足不同年龄段人群日常居住需求,卫生间设计的进化除了考虑适老性,也更重视满足低龄儿童的刚性需求。
佛山美的东樾湾的客卫正对儿童卧室门,缩短孩子使用卫生间的动线,也有更多贴心设计细节。市场上大部分产品卫生间镜子的高度主要取决于成人视平线高度,而美的东樾湾的低位魔镜下方则是尽量靠近洗手池台面,孩子洗脸、梳头时都能清楚看到自己。此外,浴室地柜自带“儿童凳”,台凳可抽拉,孩子垫着脚凳,就能独立洗漱、洗手了。

3、智能化卫浴快速普及
近年来,房企将智能家居的概念逐渐落地,卫生间也不例外。随着卫浴家居的智能化水平不断提升,房企也将越来越多的智能科技纳入进来,让居住者享有更健康舒适、更便利的卫浴体验。
呼和浩特金地·峯启未来淋浴器配有恒温花洒,洗浴水温更舒适,主卫还配有智能马桶,其余卫生间也预留插座,方便后期加配智能马桶的需求,为居者带来高科技卫浴空间。青岛金地华章卫生间主镜面为智能魔镜,以智能中控系统为核心,联动智能家居,同时可安装任何app软件,搭配环境系统、影音系统、安防系统,满足不用需求,实现简便、高效的生活方式。
4、品质化趋势赋予卫生间更多角色、更多元生活场景(略)
目录
一、住宅产品的卫生间数量变动趋势
1、主力户型卫生间数量配比增加
2、 创新的0.5卫成为平衡性价比和使用需求的卫生间解决方案
3、 卫生间数量代表住宅档次,豪宅中甚至超过房间数量
二、 住宅产品的卫生间结构变化趋势
1、全明卫占比稳步增加,南方趋势尤为凸显
2、全明需求影响卫生间位置,户型规划具有较强规律性
3、客卫多采用一字型结构,强调干湿分离效果
4、主卫结构更多元,注重私密性,干湿分离并非主流
5、彻底干湿分离的卫生间可实现双卫相近使用效果,但设计仍属小众
三、住宅产品的卫生间功能进阶趋势
1、适老化设计提升卫生间安全性便利性
2、适幼化设计塑造全龄段生活场景
3、智能化卫浴快速普及
4、品质化趋势赋予卫生间更多角色、更多元生活场景
排版 | 鸟姐