新浪财经

单价倒挂 2 万 / 平?首农・御林湾的 “漏”能捡吗?

地产瞭望

关注

最近这段时间,单价倒挂2万/平的首农·御林湾宣传铺天盖地。

很多人被这波“价格福利”冲昏了头,仿佛捡到了上车朝阳的“漏”。

但仔细研究就会发现,这份“高性价比”的光环背后,藏着一场悄无声息的“减配”!

今天,咱们就扒一扒这个“蛰伏8年”的项目,到底藏着多少不为人知的坑。

临门一脚换外立面,是优化还是减配?

去年年底北京市规划和自然资源委员会朝阳分局发布一则公示显示,这个即将全面封顶、进入外立面施工阶段的项目,要“改头换面”了。

根据公示内容,建设单位北京东洲房地产开发有限公司申请,对项15栋商品房(南10#-21#住宅楼、西2#-4#住宅楼)和西1#商业楼东栋的外立面进行调整。

调整总面积高达214947.34㎡,其中住宅面积213198.57㎡,商业面积1748.77㎡。

具体调整内容为,上述16栋楼,将石材外立面调整为玻璃和铝板组合的外立面。

从图中不难看出,此前外立面是比较传统的首层到三层深色石材、四层以上浅色石材搭配,风格类似东湖湾。

调整后采用玻璃搭配铝板的组合,呈现浅灰色,这种搭配也是近几年不少项目会用的风格,比如某海的叁号院系列。

另外,调整后的窗墙比有变化,开窗面更大,有可能会做落地窗。

此次调整,市场上也出现了两种声音,第一种是认为调整后颜值大幅提升,更有质感;另一种声音则直指“降低成本”。

熟悉楼市的人都知道,外立面材质直接决定了楼盘的档次、耐久性和居住体验。

而干挂石材无疑是高端楼盘的标配,不仅质感厚重、历久弥新,而且耐久性强、保温隔热效果好,普通石材造价就达到800-1000元/㎡,高档石材更是高达1500元/㎡以上。

而玻璃+铝板组合,虽然视觉上更具现代感,但成本和质感都与石材有不小差距,且玻璃幕墙存在光污染、后期清洁成本高的问题,铝板也容易出现氧化、变形等情况。

更值得关注的是,项目在2026年3月左右全面封顶,而调整的时间点刚好到了要做外立面的关键节点。

此公示,看似“合理”,实则颇有“生米煮成熟饭”的意味。

八年磨一剑?

御林湾当前的宣传点,是“8年磨一剑”,仿佛这8年的等待,都是为了打磨出更完美的产品。

所谓8年磨一剑,磨的不是产品,是购房者的耐心,耗的是自己的口碑。

故事要从2017年说起。

当年,首农集团摘得奶西323、324地块,地块位于朝阳区崔各庄乡来广营北路东、西两侧,毗邻京承高速。

地理位置不算差,当时不少人都期待着这个国企项目能打造出区域标杆。

按照最初的规划,项目合同约定2017年12月开工,2020年12月竣工,最晚2021年就能入市。

但现实远比规划残酷!

拿地两年后毫无动静,2019年项目短暂动工后,就发生了安全事故。

2023年重启复工后,又深陷报规和调规的循环中,历经一波三折,直至2025年初,再次变更建设方案获批,才得以进入大众视野。

而这坎坷的身世背后,是开发商复杂的股权纠纷和非专业开发的硬伤。

据悉,项目开发商北京东洲房地产,由首农集团全资子公司东郊农场持股51%,民企伯仲联投资持股49%,形成“国企控股+民资参股”的格局。

但问题在于,首农集团作为大型国有农业食品企业,在房地产开发领域毫无经验,缺乏高周转意识和专业开发能力。

而二股东伯仲联投资背景复杂,股东涉足矿业、科技等非地产领域,同样不懂楼市开发。

两种截然不同的开发逻辑碰撞在一起,加上持股比例接近,导致项目决策效率极低,内耗严重。

2022年,股东间的矛盾彻底公开化,当年9月,因借款合同引发纠纷,大股东东郊农场将二股东伯仲联投资和东洲房地产一同告上法庭,随后伯仲联投资上诉,双方陷入长期诉讼。

天眼查显示,伯仲联投资持有的东洲房地产1470万元股权被冻结,冻结期限直至2028年。

股权纠纷、开发停滞、安全事故、规划反复修改,这就是御林湾“8年磨一剑”的真相。

所谓的“匠心打磨”,不过是开发商无力推进项目的借口。

所谓的“沉淀积累”,不过是长期内耗后的被动拖延。

如今终于全面封顶,预计2027年交房。这样算来,从拿地到交房,满打满算10年!

再出发的御林湾,面对的早已不是当年的市场。

中建拎着产品力杀进来,金隅跟着卷品质,国誉府更是换上了“屠龙刀”。

好房子全面迭代,御林湾产品落伍了

御林湾之所以能吸引大量购房者,核心卖点就是“低价”。

奶西板块目前新盘成交均价在8万-9万元/㎡区间。

而御林湾单价在6.3万元/㎡左右,单价倒挂2万多,总价600万就能上车,堪称区域“价格杀手”。

但天下没有免费的午餐,低价的背后,是拉胯的产品力,所谓的“改善体验”,不过是空中楼阁。

毕竟,羊毛出在羊身上,开发商不会做慈善,你贪的是它的低价,它坑的是你的居住体验,主打一个“愿者上钩”。

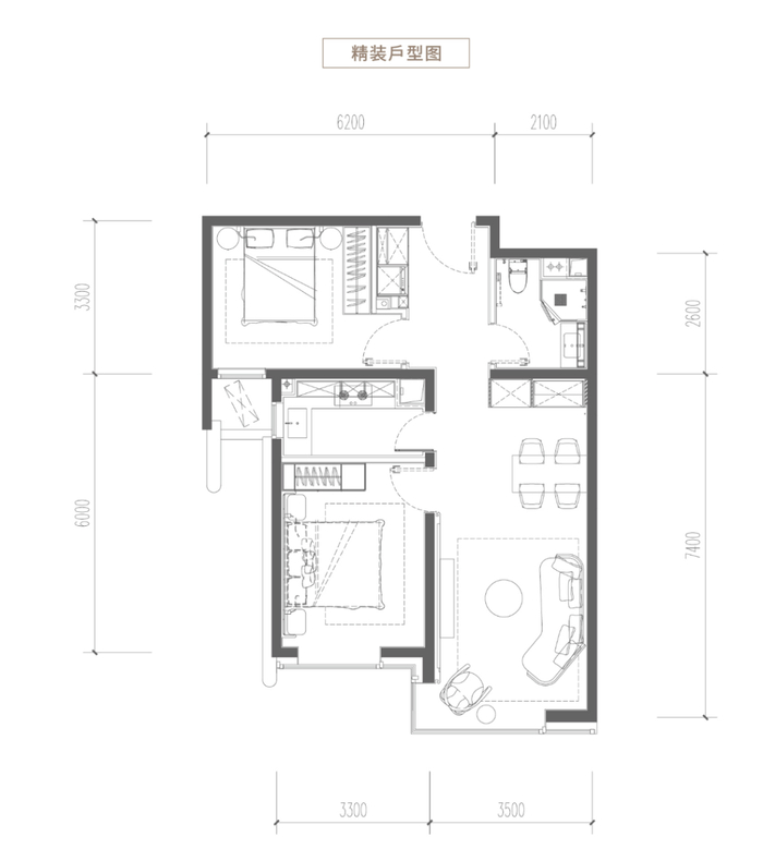
先看项目规划。

御林湾涵盖南、西两个地块,总建筑面积约21.04万㎡,包括高层住宅与低密洋房,配建有约2.3万㎡商业,合计1563套房源。

其中南区(324地块)规划12栋高层住宅楼,以90-155㎡户型为主,共1487套。

西区(323地块)规划3栋6-7层住宅楼,建面213-220㎡大平层产品,仅76套。

得房率约为77%-88%。

看似覆盖了刚需到改善的全需求,但只要仔细分析,就会发现诸多问题。

首先是南区的居住纯粹性极差,南区不仅有商品房,还包含中直机关家属楼和人才房。

虽然地上做了绿植栅栏,地下车库隔离,不同物业公司管理实现独立管理,但居住人群复杂、管理标准不统一的问题,早已注定。

还有就是户型设计和得房率。

作为8年前规划的产品,御林湾的户型早已跟不上当下市场的“好房子”标准,甚至可以用“过时”来形容,得房率也普遍偏低。

我们逐一拆解核心户型的硬伤:

90㎡两居,作为刚需入门户型,如今市面上同面积段基本都能做到三居两卫,而御林湾不仅只做了两居一卫,而且还是暗卫,南北不通透,户型缺角多。

北次卧与厨房夹角,外接设备平台,采光和视野极差,唯一的亮点就是独立玄关+家政间的收纳设计,但根本无法弥补核心功能的缺失。

90平户型

125㎡三居,虽然做到了南北通透,但存在明显的设计硬伤,东南缺角,南向只有两面宽。

140㎡户型bug也不少,尽管面积达到了140平以上,但客厅面宽仅4.2米,入户区存在严重面积浪费,公卫为暗卫。区域内有同面积段的户型可以做个对比,比如望京云尚的138平户型,宽幅横厅搭配南向三面宽光幕,进深比近乎1:1,还有IMAX全景落地宽窗,通透感直接拉满,双明卫设计。

155㎡四居,作为改善主力户型,问题最为突出。

狭长的客厅+餐厅占了将近60㎡,空间利用率较低。

北向窗墙比非常小,采光不足,四个卧室面积都偏小,主卧虽然超过20㎡,但飘窗和主卫占用了大量空间,没有独立衣帽间,只能搭配一组大衣柜,与“改善”定位严重不符。

主卫带浴缸却采用单台盆设计,使用不便,公卫为暗卫,通风和采光都成问题。

155平户型

西区213-220㎡的大平层,也没能幸免。

虽然西区容积率仅1.3,得房率高达90%,一层下跃带30-70㎡花园,顶层上跃有观景平台。但南次卧的卫生间依然是暗卫。

220平户型

西地块还有个很大的问题,紧邻来广营北路,噪音污染严重,而且地块较小,没有像样的园林景观,与高端改善的定位相去甚远。

除此之外,项目的得房率也存在明显短板。

南区90㎡/119㎡户型得房率约76%-80%,120㎡以上户型得房率80%以上,看似尚可,但对比当下市面上同类型改善盘普遍85%以上的得房率,差距还是十分明显的。

配套匮乏、资金承压,交房风险不容忽视

如果说外立面减配、户型过时、得房率缩水,还能勉强接受,那么御林湾隐藏的配套短板和交房风险,就不得不让人警惕了。

首先是配套匮乏,尤其是轨道交通的缺失,成为项目最大的硬伤。

御林湾位于崔各庄乡来广营北路附近,毗邻京承高速,驾车方便。

但项目周边缺少直达的轨道交通,距离最近的地铁站善各庄要3公里左右。

其次是项目的资金承压风险。

虽然御林湾拿地时间早,土地成本(约2.8万元/平)有优势,但长达8年的开发周期,积累了高昂的资金成本,加上股东纠纷、停工整顿等因素,项目的资金压力可想而知。

开发商之所以采取“低价换量”的策略,本质上就是无奈之举,产品过时,价格上不去,通过低价快速回笼资金,缓解资金压力。

但低价入市,必然会压缩利润空间,而利润空间的压缩,很可能会导致后续施工质量、物业服务等环节的减配。

另外值得关注的是,开发商东洲房地产的股东纠纷尚未彻底解决,二股东股权被冻结,后续是否会影响项目的正常施工和交付,还是一个未知数。

住建委数据显示,其于2026年2月7日拿证,不过截至发稿,仍未见一个网签数据。

不可否认,御林湾的低价确实为刚需族提供了一个上车朝阳的机会。

对于那些预算有限、只看重价格和准现房属性,且能接受所有短板的购房者来说,或许可以考虑。

对于大多数追求居住品质、看重生活体验的刚需和改善族来说,御林湾的诸多硬伤,足以让它成为一个“避坑选项”。

最后提醒购房者,低价不是“漏”,买房请擦亮眼!

加载中...