最新公示!天津这所“九年一贯制”学校有新变化
(来源:天津日报)
转自:天津日报
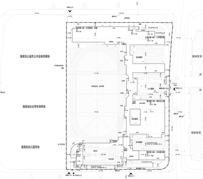
8月7日,天津市规划和自然资源局网站发布《(滨海新区)关于津滨塘(挂)2023-9号05-38地块(九年一贯制学校)建筑设计方案总平面图(调整)的公示》,对此前公示将建的“九年一贯制”学校的设计方案总平面图进行了调整。
项目位置:滨海新区塘沽永明道以南、永平道以北
建设单位:天津渤化海晶建设发展有限公司
设计单位:深圳和华国际工程与设计有限公司
项目简介(变更说明):建设内容为九年一贯制学校,规划用地面积26740.8㎡,容积率≤1,绿地率≥35%,建筑密度≤30%。
地下车库面积由原2657.15㎡调整为2363.15㎡,总建筑面积由24944.87㎡调整为24650.87㎡。
项目包括小学24班:45人/班,中学12班:50人/班,还包含教学楼、田径场、篮球场、停车位等建设项目。
公示期间,周边单位及个人如对公示内容发表意见,请以电子邮件或电话方式反馈。
信函请寄:滨海新区于家堡融和路681号宝策大厦裙房行政许可服务中心
邮编:300450
联系人:徐艺桐
联系电话:022-66897974 (接听时间为 8:30—12:00,14:30-17:30)