新浪财经

村里都没啥人了,为啥还要回去建房子?老农民说出实情,原因很简单!

住宅公园

关注

这两天有个粉丝留言格外值得琢磨,他说:我不明白为什么父母非要回村建房子,明明都没啥人了却还要建!

其实这个问题,宅宅还在上学的时候也想过,那个时候很不懂,父母为啥这么喜欢农村,当时房价也不高,完全可以买房住。

但当在外奔波许久,只能等过年才能回去的时候,我明白了建房的意义。其实很简单,总结起来就下面这4点。

1、先把宅基地占住

很多人说回村建房是为了留念想、为了养老,这话不假,出发点也没问题,但更多人回村建房,是为了把自己名下的宅基地给占住。

根据《土地管理法》及相关政策规定,若宅基地闲置超过两年且无正当理由,村集体有权收回。

因此,宅基地上若是没有房子的话,村里是能收回的,毕竟长时间闲置会造成土地资源浪费,违背了宅基地分配的初衷。

假如宅基地上有房子,但这个房子因为自然老化等问题坍塌了,那么宅基地会被收回吗?

答案是若超过两年仍未恢复使用,村集体也可能收回宅基地。

打个比方,因为一些自然灾害等问题,致使房屋倒塌,农户一直未进行重建,时间超过两年,村集体便有收回的可能。

尽管村里没啥人了,但还是想着回去建房,就是为了把宅基地留住。

2、身份象征与攀比心理

农村里的攀比风气要比城市更严重,并且日益盛行。很多人都爱面子,不管你在外面混得如何,若是家里的房子还是破破烂烂,父母就很难抬起头来。

所以说,外出打工这么久,修栋房子让周围邻居瞧瞧,也是光宗耀祖的事情。

因此,大家才会不惜花大量的金钱在农村盖房,即便现在不住,但逢年过节回到村里也有面子,不再被人看不起。

这也是为什么现在的农村,遍地是二层或三层的小洋楼。

而且如今的农村水泥路通到家家户户的大门口,垃圾被集中处理,自来水、网络、天然气这些已经在前几年都实现了。

随着新农村建设脚步的加快,农村的居住环境越来越好。

3、给父母的养老住所

80%的人回村建房,目的就是为了给父母养老。

前两天有个观点,说的是父母照顾的问题。总结起来就是一句话:把父母接到身边,其实是苦了父母,累了自己。

仔细想想不无道理,我们坚信父母接过来后可以给他们更好的生活,更舒适的体验,更充足的人生。

但同住一周就发现,两个人的生活方式已经对不上了。父母习惯早起,可子女只想周末补觉;父母想要证明自己在孩子家依旧有作用,可孩子觉得父母没必要这么忙活。

两代人的思维方式跟生活方式从此刻出现了隔阂,父母在讨好,我们在无所适从。倒不如回村建房,让他们安然养老。

毕竟农村山好水好,周围也都是熟悉的人,只是改善一下居住环境,就能让父母的晚年生活更有保障。

建房是为父母提供舒适的养老环境,也是尽孝的表现。

4、为以后做准备

以后有多远,没人知道,但总要规划的。

回到乡下老家,养养鸡、种种菜、钓钓鱼,平日里喝点小酒、打点小牌,生命是从这里开始的,再从这里结束。

对于大多数农村出来的人来说,外面的房子,只是一个住所,老家的房子,才是真正的家。这或许就是为什么即使老家的房子没人住,也要造起来的原因吧。

既然要盖房,户型图纸不可少,今天就给大家带来10套适合农村自建的户型图纸,一起来看看吧。

01

占地尺寸:18.88mX13m

占地面积:148.5㎡

建筑面积:281.5㎡

建筑高度:10.9m

户型编号:1552

02

占地尺寸:10.76m×8.76m

占地面积:94.2㎡

建筑面积:201.84㎡

建筑高度:9.9m

户型编号:1553+

03

占地尺寸:11.6m*9m

占地面积:107㎡

建筑面积:214㎡

建筑高度:9.5m

户型编号:1568

04

占地尺寸:11.4m×8.2m

占地面积:102.38㎡

建筑面积:204㎡

建筑高度:9.152m

户型编号:1571

05

占地尺寸:16.4m×9.44m

占地面积:146㎡

建筑面积:299㎡

建筑高度:9.552m

户型编号:1572

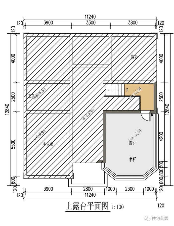
06

占地尺寸:11.2m×12.84m

占地面积:143.8㎡

建筑面积:246㎡

建筑高度:9.152m

户型编号:1573

07

占地尺寸:14m×10.14m

占地面积:147.53㎡

建筑面积:287㎡

建筑高度:9.5m

户型编号:1575

08

占地尺寸:20.1m×11.1m

占地面积:253.45㎡

建筑面积:507㎡

建筑高度:9.65m

户型编号:1577

09

占地尺寸:7.5m×12m

占地面积:105.73㎡

建筑面积:210.5㎡

建筑高度:9m

户型编号:1587

10

占地尺寸:12.3m×14.2m

占地面积:178㎡

建筑面积:350㎡

建筑高度:8.9m

户型编号:1588

加载中...