新浪财经

200万级天花板:TA,重新定义主城门槛

楼市牙尖帮

关注

2025年的成都主城楼市,正经历一场无声的割裂:核心区新房套均总价突破500万,改善型产品占比超七成,刚需被挤压至远郊或二手市场。

在此背景下,龙潭寺TOD·龙潭九玺以“超配升级”为核心理念:

为总价约200万级的刚需住宅配置改善项目才会有的社区配套,打造主城“好房子”,从而重构主城居住的价值天平。

这场看似“逆潮流”的破局之战,恰是城市更新深层逻辑的映照——当房企争相追逐高净值客群时,谁来匹配年轻潜力股的居住生活?

十年前,成都的置业逻辑被“板块属性”固化——人们用“几环”衡量地段价值,金融城、大源、攀成钢等传统核心区凭借地理优势占据价值高地,拥有绝对的话语权。

而东三环等区域则因“物理距离”被贴上“次级板块”标签,但现在随着龙潭寺TOD的全面落地建设,‌这一陈旧置业逻辑正在被快速颠覆。

在成都城市开发步伐沿着一环直至三环,呈典型同心圆发展的时代,离市中心越近的地段意味着价值越突出。

然而当成都城市开发的主线随着天府大道一直向南,传统城区开发进入到三环之外后,城市的热点板块逐渐演化为散点分布的多“中心”发展。

城南大源西的爆火,青羊蔡桥的崛起,成华龙潭寺TOD板块的持续兴盛,均是这种城市发展节奏的直接反馈。

其背后的核心原因是,成都地铁线路的不断普及完善,让原本主城的“次级区域”成为主城成为密不可分的一部分,通勤时间普遍压缩至30分钟以内,城市距离改写为精确到分秒的时间刻度。

由此,成都的置业习惯不再局限于简单的“物理远近”,“地段至上论”逐渐演变为时间效率优先,地铁成为置业选择区域主要考虑的因素。

龙潭寺TOD片区便是随着地铁8号线的全线投入运营,30分钟内串联龙湖滨江天街、万象城、环贸ICD、光环购物中心、招商花园等商业体。

沿线还分布有东郊记忆、成都自然博物馆等文旅配套,构建起沿线居民高效的城市生活。

除了置业逻辑的转变外,龙潭寺TOD不断兑现,超配的大城生活,则是片区逆袭的内因。

资料显示,龙潭寺TOD一体化设计范围超3000亩。

项目以8号线桂林站、桂龙路站为核心,是成都首座双站点TOD,涵盖商业、住宅、办公、教育、医疗等多种业态。

这意味着龙潭寺TOD本就是一座自成一体,可以生活、工作、游玩的独立大城。

以商业为例,龙潭寺TOD规划打造约47万方城市级商业配套。

论体量其超越万象城,相当于3个龙湖滨江天街;论业态其涵盖写字楼、商业综合体、街区商业等多种业态。

据悉,其中约21万方商业体已于2024年4月开工建设,预计今年9月就将正式签约品牌运营商。

参考陆肖TOD、四川师大站TOD携手万象生活,分别打造西南首座万象天地购物中心、全国首座全新万象系消费中心;马场坝TOD签约龙湖打造天街综合体;双凤桥TOD引入山姆会员店等成功的运营经验来看,龙潭寺TOD引入的运营商大概率将是全国著名的商业运营集团,这将有效地保证商业体后期的运营水平。

除了商业资源的超配外,龙潭寺TOD片区的教育、绿地公园等生活配套资源同样能够高频触达。

绿地公园方面,项目一体化设计范围规划有7个街区口袋公园,周边熊猫体育公园、3000亩北湖湿地公园、龙潭新区公园、龙潭湿地公园环绕。

龙潭寺TOD·龙潭九玺东南侧就有已经交付使用的街区口袋公园,真正是“下楼即入园”的公园社区。

教育方面,成都石室初中华青学校已经招生运营,这所九年一贯制的学校是石室中学“一校三区”之一,是成华区家长们择校的优选。(文中所示学校仅为项目周边学校信息一览,不作入学承诺,具体就读学校以学区划片及招生简章为准。)

近邻一站式优教,让每个孩子都能享有平等的起跑线。

可以说,在地铁8号构建起便捷的交通体系,缩短了片区与市中心的通勤时间后,就已经具备了崛起的基底。

再加上TOD“137模式”整体规划注入的商业、教育、公园、医疗等综合生活资源,让片区成功吸引主城购房者的瞩目。

在成都主城新房动辄“200㎡起步”“500万+”的今天,龙潭寺TOD·龙潭九玺怎样才能让关注度进一步转化为购买热度呢?

龙潭寺TOD·龙潭九玺提出了一个更"接地气"的居住方案——

以超配升级为核心理念,在72亩容积率仅2.0的土地上,为200万级的购房者修筑13栋面积约在115-143㎡的华宅,构建起“安全、舒适、绿色、智慧”的好房子。

让对于普通购房者而言遥不可及的“顶配”生活变成标配,真正普惠购房者。

区别于其他刚需、刚改项目匮乏的景观造诣,龙潭寺TOD·龙潭九玺超配了对标轻奢度假酒店的景观体系。

其利用内外部景观资源,构建起口袋公园+昭示性归家大门+内部园林的三重景观体系,营造尊崇的归家体验。

项目内部约3.9万平的森系景观本就是同级别社区中的佼佼者,更难能可贵的“一轴·双院·双环·多园”的景观层次在融合曲水万象、极简线条与低饱和色调后,整体塑造出十足的度假氛围。

想象一下,定制的精奢石材奢阔星空顶府门,向街角口袋公园自然延展,建筑与绿地公园融为一体,是否就构成了一副绝美的城市封面呢?

同时,秉持“全龄友好”的设计理念,龙谭九玺还于园林中系统化规划多元活动空间:

为孩童打造超800㎡“天空树屋”主题化儿童乐园;

为青年配置600m环氧活力跑道及共享社交空间;

针对长者需求,设置无障碍通道、扶手、防滑地面等适老化设施。

由此,各年龄段居民都能在社区找到专属生活场景,实现精神世界的富足。

未来待业主漫步其间,沿着归家轴线依次穿越仪式府门、迎宾景墙、风雨连廊、中央水院、艺境花园,酒店式双入户大堂。

整个人的心境都将由面对外界的紧绷逐步过渡到归家的放松状态,真正让归家成为一场心灵放空的轻旅行。

与此同时,龙潭寺TOD·龙潭九玺还在架空层构建了约800㎡的泛会所空间,配套古茗飘香的幽静茶室、活力健身房、墨香萦绕的阅读区、全龄段儿童室内活动区等功能分区。

说实话,利用架空层建设泛会所空间很常见,但为200万级的首置首改客户配备如此功能齐全、规模空前的泛会所却不多见。

未来这里或将成为业主商务社交、家庭聚会、休闲生活的活动中心,是业主真正“用得起”,而非仅仅“看得见”的社区会所,是业主们共享的第二会客厅。

值得注意的是,伴随着架空层被建设为泛会所空间,不但补齐了刚需、刚改社区缺失的会所,更进一步提高了社区的整体颜值。

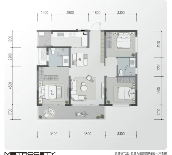
户型方面,龙潭寺TOD·龙潭九玺目前主推建面约115㎡舒居三房、建面约125㎡阔尺四房,全面满足200万级主城购房者的置业需求。

其中,建面约125㎡户型为标准的横厅布局,LDKB厅面积超50㎡,并配置约8.6m跑道式观景阳台。

可以说,在125㎡空间内实现的是市面建面约143㎡户型同款的中央活动区。

静区方面,主卧套房面积达到约23㎡,面宽约3.4m。

除了豪华床区外还有空间设置步入式衣帽间,在同级别户型中称得上越级尺度享受;

此外,其余卧室也满足超过3米的舒适面宽。

约200万级的总价门槛,更是在价格层面卷到了天际,可以说该户型是今年主城最具性比价优势的标准四房。

建面约115㎡舒适三房在主城动辄500万的总价环境下已经近乎绝版,约180万即可上车,可谓主城最后的“温情”。

户型格局上看,该户型在动区与静区舒适性上取得了平衡,各功能区尺度舒适适宜。

值得一提的是,该户型还拥有一个长度达到7.2m的跑道式阳台,除了观景外还附加了运动空间的扩展功能。

以总价约200万买入主城“好房子”实现生活的改善,享受高改产品才能享受的社区配套,龙潭寺TOD·龙潭九玺在践行社会责任,满足购房者低总价买入主城“好房子”的愿望上做出了表率。

事实上,作为轨道集团在东三环打造的人居“好房子”,龙潭寺TOD·龙谭九玺已经获得了行业的认可。

近日,其从全国数百个标杆楼盘中脱颖而出,荣膺中指院颁发的《2025年人居梦想“好房子”》称号。

这标志着“轨道交通引领城市发展格局,TOD开发重塑城市空间形态”核心理念的获得权威背书,也再一次印证了“轨道不仅是交通工具,更是城市文明的传送带”的时代命题。

可以说,龙潭寺TOD·龙潭九玺的诞生,不仅是成都主城房价体系的一次“破壁”,更是国企开发商对市场责任的主动回应。

当多数房企沉迷于高端化叙事时,轨道集团选择以“让年轻潜力股住进主城”为使命,用产品力重塑价格与价值的平衡点。

未来,随着龙潭寺TOD板块的全面落地与产业人口导入,这一“超配样本”或将成为主城刚需复兴的里程碑。对于购房者而言,这或许是一个“用时间换空间”的最佳窗口——以近郊的价格,提前锁定下一个价值爆发区

加载中...