新浪财经

想建房当民宿?这13套案例看了再决定,都是过来人的经验之谈

住宅公园

关注

这两年,旅游经济十分火热,毕竟憋了那么长时间,大家都想出去放松一下,有远见的人,现在都开始准备农村民宿经济了。

你别不信,未来几年,农村民宿一定会红火,为啥?因为城市里实在是憋得太久了,就需要这么一个山清水秀的地方好好放松一下,多余的房子拿出来做民宿,自己赚钱当老板,收入稳步增长。

今天小宅整理了往期的民宿案例,既有接地气的农村民宿,也有时尚的现代民宿,希望能给一些有想法做民宿的朋友一些参考。

案例一

湖南小伙300万,自建千平中式民宿

湖南肖先生在江浙打拼多年,手头终于有了建房的本钱,刚好老家山清水秀,旅游资源丰富,便决定建一栋特色民宿,满足自住跟开店两种需求。

中式古建,四水归堂,在一众农村欧的房子里很是惹眼。

做民宿,除了住宿这一硬性要求之外,当然还得配套一些休闲设施,这样才能享受更为纯粹的田园生活。

鱼塘、泳池、四季野林,带来别具一格的舒适感受。

案例二

120万改造老宅,旧平房变成特色温泉民宿

现如今,民宿项目发展地热火朝天,这位来自东北的陈先生,也放下大城市的工作回到了农村老家搞起了民宿事业。

温泉、K歌房、露天烧烤、汗蒸馆……这些当下流行的娱乐项目都汇聚在了这栋民宿里。

客房面积大,而且全都是火炕房,试想一下寒冷冬日,自己舒舒服服地躺在热乎乎的火炕上,别提有多爽了。

室外露天汤泉更是一绝,40多度热腾腾的温泉,身体被暖得涨红了脸,这是独属于冬日的闲适好时光。

案例三

小伙百万自建归家民宿,领略不一样的农村风光300万

因为业主家里靠近居庸关、八达岭长城、十三陵景区,所以本想自家住的房子,后面觉得装修成民宿也不错。

小二层的农村别墅,外观简欧设计质感十足,布局稳重大气可接待多人生活。

入门便是60多平米的客厅,可提供一个多人活动的空间,客人们如果要进行团建活动或者组织私人派对也非常方便。

如果是团建聚会便少不了团体娱乐活动,室内单独设有KTV房,多方面满足客人所需。

价格方面呢,土建部分施工花费50万,后面装修也花了50万,统共百万建起这栋实用民宿,大家觉得划算吗?

不过这民宿也不是说建就建,说改造就改造,首先得要有图纸,可以跟别的民宿做出区别,那设计就成了关键所在。

今天就给大家带来10套民宿户型,设计感十足,看看这样的案例有没有你喜欢的。

01

02

占地尺寸:13.7m×20.48m

占地面积:294㎡

建筑面积:763㎡

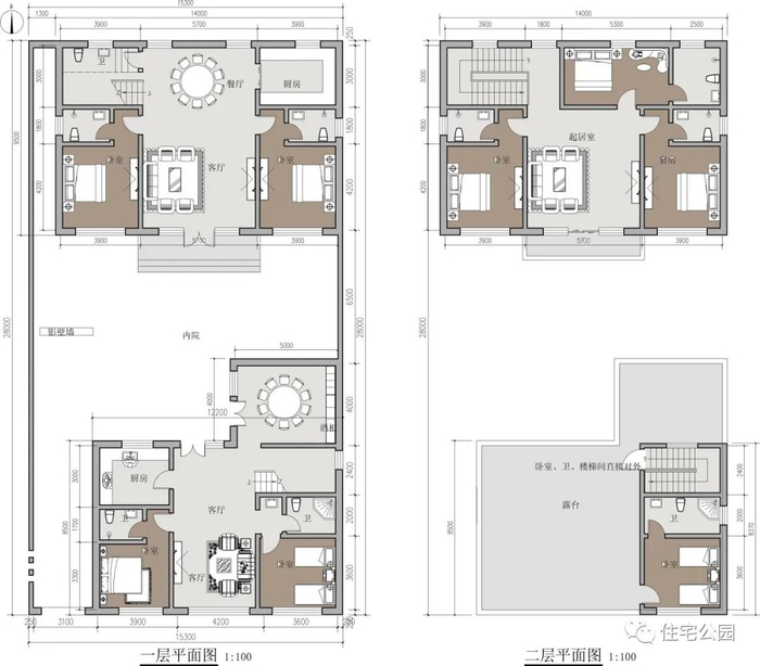
03

占地尺寸:24.7m×29.8m

占地面积:405㎡

建筑面积:945㎡

04

占地尺寸:7.8m × 23.4m

占地面积:159㎡

建筑面积:349㎡

05

占地尺寸:26.5m × 16.9m

占地面积:455㎡

建筑面积:847㎡

06

占地尺寸:20.22m × 14.46m

占地面积:218㎡

建筑面积:643㎡

07

占地尺寸:11m × 11.36m

占地面积:125㎡

建筑面积:312㎡

08

占地尺寸:16.9m × 10.52m

占地面积:147㎡

建筑面积:395㎡

09

占地尺寸:14.8m × 22.3m

占地面积:204㎡

建筑面积:450㎡

10

占地尺寸:13.8m × 15.2m

占地面积:155㎡

建筑面积:304㎡

加载中...