新浪财经

10套带堂屋的农村二层别墅,送给准备建房的你

住宅公园

关注

联系热线:18911572127

农村建房,堂屋的功能与地位真的不是客厅所能比的,堂屋更尊贵,更适合接待一些贵客,或者是举行一些重大的红白事、祭神祭祖等事宜。

今天住宅公园便给大家整理了10套带堂屋的户型图,均为全图设计,2024年建房,就选这样的!

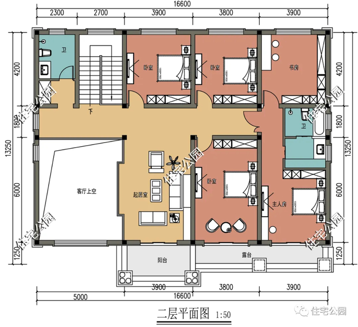
占地尺寸:16.6m×13.2m

占地面积:233㎡

建筑面积:405㎡

户型编号:1379

02

占地尺寸:15.6m×12m

占地面积:187.2㎡

建筑面积:288㎡

户型编号:1462

03

占地尺寸:11.6m×9m

占地面积:107㎡

建筑面积:214㎡

户型编号:1568

04

占地尺寸:15.74m×13.04m

占地面积:168㎡

建筑面积:323㎡

户型编号:1591

05

占地尺寸:18m×13.6m

占地面积:198㎡

建筑面积:348㎡

户型编号:2457

06

占地尺寸:17.3m×10.3m

占地面积:153㎡

建筑面积:288㎡

户型编号:2176

07

占地尺寸:12m×9m

占地面积:108㎡

建筑面积:219㎡

户型编号:1865

08

占地尺寸:15m×14m

占地面积:136.79㎡

建筑面积:268.93㎡

户型编号:1768

09

占地尺寸:13.24m×13.84m

占地面积:171㎡

建筑面积:344㎡

户型编号:1737

10

占地尺寸:12m×10.48m

占地面积:135㎡

建筑面积:262㎡

户型编号:1391

加载中...