新浪财经

市规划和自然资源局福田管理局关于福田外国语学校小学部(侨香小学)建设项目总平面图修改公示的通告

深圳特区报

关注

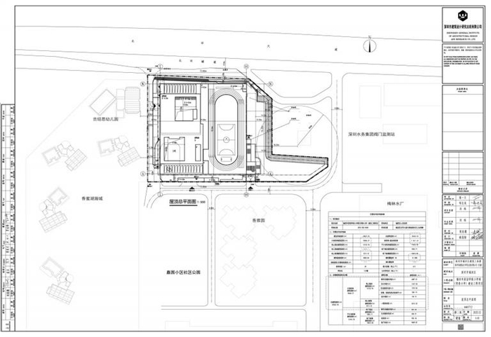
福田外国语学校小学部(侨香小学)建设项目位于福田区香蜜湖路与北环大道交汇处,宗地号B303-0060,用地单位为深圳市福田区教育局。该项目于2018年5月22日取得《建设用地规划许可证》(深规土许FT-2018-0017号),于2018年10月23日取得《建设工程规划许可证》(深规土建许字FT-2018-0033号)。因建设单位申请该项目总平面图修改,现将该总平面图进行公示,具体变更内容(详见附件图中圈云线范围)为调整主要技术经济指标表。

上述调整后,总图仍符合《建设用地规划许可证》(深规土许FT-2018-0017号)及相关规定要求。

根据《中华人民共和国城乡规划法》及《深圳市建设工程规划许可(房建类)报建文件编制技术规定》的有关要求,现对该项目总平面图修改予以公示,公示时长为十个工作日(公示期为2024年1月22日至2024年2月2日)。公示期内如对该项目的总平面图修改有意见和建议,请使用真实姓名及有效联系方式通过书面形式与深圳市规划和自然资源局福田管理局联系,逾期视为无意见。

联系电话:0755-83133822

联系人:张工

联系地址:深圳市福田区新闻路69号山水大厦

公示地点:

(一)项目现场

地址:福田区香蜜湖路与北环大道交汇处

(二)深圳市规划和自然资源局福田管理局一楼大厅

地址:福田区新闻路69号山水大厦

(三)网站

深圳市规划和自然资源局网站

网址:http://pnr.sz.gov.cn

深圳市规划和自然资源局福田管理局网站

网址:http://pnr.sz.gov.cn/ft/

(四)报纸(深圳特区报)

加载中...