新浪财经

北蔡镇将新建一所配套初级中学,一大波效果图来了~

媒体滚动 2023.08.10 19:00

转自:上观新闻

浦东北蔡镇将新建一所配套初级中学

食堂、风雨操场、行政楼、综合楼、

图书馆、多功能厅、教学楼

及配套设备统统安排上

具体内容如何?

一起来看看↓

项目名称

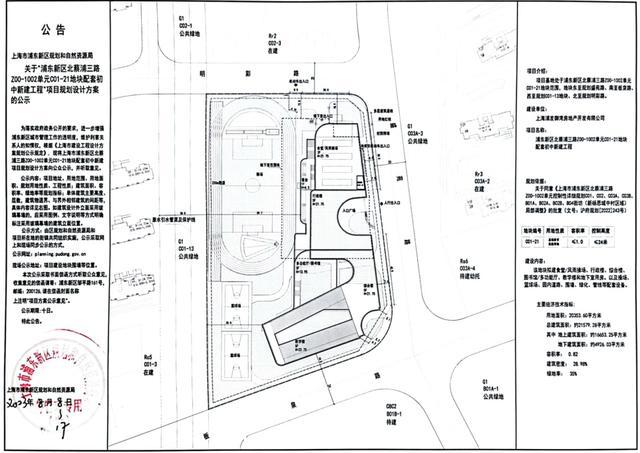
浦东新区北蔡浦三路Z00-1002单元C01-21地块配套初中新建工程

建设单位

上海浦发御湾房地产开发有限公司

项目介绍

项目基地处于浦东新区北蔡浦三路Z00-1002单元C01-21地块范围,地块东至规划盛苑路、南至板泉路、西至规划C01-13地块,北至规划明彩路。

公示图

用地性质

基础教育设施用地

建设内容

该地块拟建食堂、风雨操场、行政楼、综合楼、图书馆、多功能厅、教学楼和地下室用房,以及操场、篮球场、园内道路、围墙、绿化、管线等配套设备。

主要经济技术指标

用地面积:20353.60平方米

总建筑面积:约21579.28平方米

地上建筑面积:约16653.25平方米

地下建筑面积:约4926.03平方米

容积率:0.82

建筑密度:28.98%

绿地率:35%

效果图

该规划落地后

将完善该区域基础教育设施配套

不断提升市民的获得感、幸福感!

加载中...