取证了!这个金沙新盘定义改善新高度
每日经济新闻
时代浪潮之上,城市日益更新,但主城的光芒,历久弥新。
如果评选“成都最宜居的板块”,金沙必定榜上有名:完善的商业配套、优质的教育资源、优越的生态资源以及海量收入可观的中等收入人群集聚。资源与品质的双重加持,令每一个置业者心中都有一个“金沙梦”。
与金沙的“特别宜居”相矛盾的是,区域纯新盘实在太少。这也就不难解释为何每当区域内有地块出售总能吸引众多房企报名参拍。如此前,板块内一宗约35亩地块,35000元/平方米的最高限价,刷新了彼时成都住宅清水限价的“天花板”,拍卖过程中,36家房企报名,最终32家房企参与抽签,创下此前参拍房企数量之最。
土拍热潮的本质是金沙板块价值与购买实力的双向奔赴。
中绿园领秀金沙意境效果图
然而在成都高端市场激战正酣的当下,什么样的产品才能在金沙这片高端云集的战场上独占鳌头,重新定义区域人居价值?刚刚取证的中绿园领秀金沙,或许将为改善群体给出一个最优解。
手握“王炸”
主城高端的“最后倔强”
花重锦官城,城以西为贵。成都,素有“西贵”之说,是成都历史与文脉最深的地方。
溯源历史,从古蜀王国首次建都择址金沙,到千禧年以后琴台路-浣花溪-金沙一脉体现了成都楼市曾经数十年的发展,青羊,可谓享受了“西贵”的文脉根基。
中绿园领秀金沙区位图
时至今日,区域已聚集了花园国际小学、金沙小学、草堂小学、泡桐树、石室、树德等教育资源,坐拥一站式全龄段K15的高质教育圈。
尤其是片区内正在建设中的占地约1770亩的百仁公园为板块绘就了生态人居的基础底色,周边已建成的清波公园、苏坡公园、黄忠公园等则为区域加持更多优质生态资源。在生态人居的基础上,成都第一骨科医院、金沙医院、市妇女儿童中心医院、青羊万达、鹏瑞利广场等醇熟的医疗、商业生活配套也为区域赋予了更多价值。
然而遗憾的是,尽管近年来成都高端住区市场,将建筑、文化、地块禀赋相结合的居所总能搅动市场风云,吸引深改购房者的眼光。但因缺乏纯新项目入市,金沙已鲜有发声。
究其根本原因,还是与区域日益稀缺的宅地供应有着直接关系。相关数据统计显示,2021-2022年,“双集中”土拍规则下,金沙板块共成交3宗涉宅地块,其中两宗分别为一宗占地23亩、自持30%租赁住房的宅地,以及一宗约9亩的地块,这并不能满足“回归”论调下的主城改善置业需求。
这也无怪乎在2022年6月,当区域内一宗约71亩土地将出让的消息一经释放,便引来大批房企围观、报名。根据土地出让条件,该宗地块容积率1.8,建筑密度不大于25%。
这,也是板块内近两年面积最大的一宗地块。
2022年7月12日,成都第二批双集中供地现场,该宗地块在经历20多轮竞价达到最高限价后,在多家房企共同竞争的抽签环节,最终由央企中国绿发投资集团有限公司(下称“中国绿发”)成功竞得。
如今,在这宗地块上,中国绿发为区域乃至城西布局下了其在成都的TOP级产品中绿园领秀金沙。
当然,寥寥数语无法将金沙板块的城市价值和城市意义彻底说个通透,但就目前来看,中绿园领秀金沙所在区域所具备的深厚文化底蕴和高能级的宜居尺度,无疑将成为城市深度改善置业的优选。
“规模取胜”
城西高端新的瞩目
一座城市的宜居价值,离不开主流人群津津乐道的居住体验。而居住体验是否舒适,离不开开发商的修为。
作为一家由国资委直接管理的企业,仅在房地产领域,中国绿发就拥有30年开发经验,足迹遍布27城,开发面积超过3500万平方米,率先实现了绿色建筑100%认证和住宅项目100%健康认证,打造了济南领秀城、重庆星城、三亚湾新城、北京顺义新城、格拉斯小镇等一批区域标志性项目。
在成都,使其耳熟能详的则是它在地产领域的另一个“名字”——鲁能。
2014年,鲁能首进成都,以9350元/平方米的地价拿下东中环一宗地块,该拿地价格也是当年成都第二贵,同年12月,鲁能再次出手拿下旁边宗地。
在历时两年打造后,一座占地220亩,投资额近70亿元,集教育、医疗、商业、公园于一体的全配套、全生命周期的生活大城,于2016年正式在东门形成,完善城东生活格局。
如今,在不断阅读成都、与成都同频共振8年后,在城西金沙稀缺地段,中国绿发首次为成都带来其TOP级之作中绿园领秀金沙,重建人与自然、人与城市、人与人之间更美好的关系,重新定义“西贵”生活新标准。
中绿园领秀金沙意境效果图
何以“领秀”?首先就在于“规模”,约71亩的占地规模,不仅是2022年青羊区9宗成交地块面积TOP2,也是金沙板块土地面积TOP1。
其中,景观占地面积超过80%,建筑密度仅18.77%,这也意味着项目将有约53亩地块用于景观打造,当“推窗见雪山,开门玩公园,出行骑绿道”的公园城市建设场景,已转化为市民可感可及的生活体验时,中绿园领秀金沙通过“一轴双环十咏”的打造,为业主呈现出约3.5万平方米层次分明的四季风景,“长在公园中的建筑”是对项目最生动的诠释,如此规模的景观占比放眼金沙板块甚至全城均不多见。
除了“规模”,还有得天独厚的资源优势:“一环、两枢纽、三地铁”城市立体交通网络,通达全城;叠加幼、小、中一站式优质全龄教育资源与天赋异禀的生态资源等。
基于以上种种,就不难解释为何在今年初中绿园领秀金沙项目信息刚一释放,就能持续吸引众多客户到访。
高端之作
让产品更有“兴”意
当然,决定一个项目能否成为“TOP级”高端住区,除了有地段和配套等的加持,更需要过硬的产品打造。
中国绿发早在抢滩入驻的那一刻便描摹好了序章,将其项目所有亮点全部倾注于这一项目上。
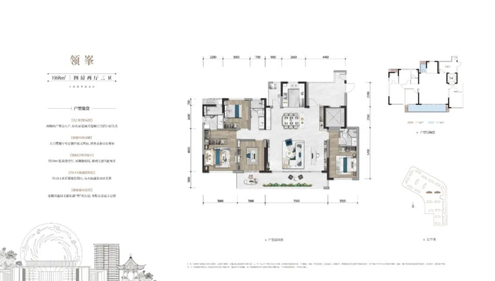
为打造出匹配金沙气质、面向未来城市的体面生活与舒适感受的产品,中绿园领秀金沙在约71亩地块上仅规划了18栋2梯2户、全独立单元布局的纯板式小高层设计,保证了每户都是端头户型,最大限度确保每一户都有三个卧室及客厅朝南,不仅让室内每一个角落都充满阳光,实现空气对流,还避免了邻里视线干扰,而每户标配的入户阳光电梯厅和入户电梯梯控,充分彰显业主独有的尊崇感和私密性。
需要注意的是,每户均享有面积达11-12平方米的入户花园,让项目整体实际使用得房率超过95%,1.8的容积率尽显高品质住区静谧的本质。这样的配置,放眼城西乃至整个成都,均十分少见。
127㎡领阅户型装修创想图
而在户型设计上,整个项目户型面积为127㎡、142㎡、168㎡,全部为四房户型,每个户型均标配有超大景观阳台,配合大面积落地玻璃设计,保证业主拥有更广阔的视野;客厅和三个卧室朝南,让业主在家就能享受清风与阳光。
168平方米领峯户型样板间实拍图
以建面约168平方米户型为例,南北双阳台设计,配有约50平方米方厅,空间感与通透性直接拉满;LDKB方厅更与约10.1米IMAX级景观大阳台相连,在适应现代居家生活多重场景需求的同时,进一步打开视野,一览园区景观或千亩湿地公园,实现置身公园的度假般享受;而整体来看,其南向面宽更是达到了约17.2米,3个卧室及客厅朝南,为居住者带来采光通风兼具的居家体验。
既定位于城西改善新标准,除了有与之相匹配的产品设计,还体现在装修标准上。项目装修均采用国际大品牌,完美诠释奢装空间美学。如中央空调采用日本家电行业的领先品牌东芝;新风系统则是采用自带除湿和PM2.5功能的双向流新风净化机美国霍尼韦尔;此外,主卫的智能马桶、面盆则是采用有着“欧洲卫浴瑰宝”的德国唯宝,汉斯格雅、科勒、欧派、多玛凯拔、GE、A.O.史密斯等均为项目装修的标配。(具体精装品牌以合同为准)
不仅如此,在高端住区标配会所上,项目则采用了顶级双会所配置。约1600平方米的下沉式会所,融入恒温游泳池、瑜伽健身房、有机超市、咖啡吧、书吧等专属空间,为业主社交与资源互换提供无与伦比的专属生活方式;约1400平方米的架空层泛会所,旨在成为业主的第二社交空间,在延展业主园区生活功能的同时,打破传统架空层景观界限,满足全龄段业主健康居家生活体验。
书吧区实拍图
健身房实拍图
泳池实拍图
作为低碳城市建设的引领者,中国绿发不惜投入巨额成本,为项目引入“六恒系统”。所谓“六恒”,即恒温、恒湿、恒氧、恒洁、恒静、恒明,生活在中绿园领秀金沙,从空气的温度、湿度,到呼吸的氧浓度,再到饮用水的净度、空间的响度、亮度,都能根据人体情况,形成量身定制的居住方案。
六恒示意图
始于区域,惊艳于地段和品牌,忠于产品。
以上种种,均源于中国绿发长时间对区域的研判、对土地的尊重以及对成都高端改善群体需求的洞悉。
建筑艺术大师斯蒂芬·霍尔曾言,居住的价值核心点,是生活与城市之间的关系。
毫无疑问,站位城市高端核心区位,一流资源赋能的中绿园领秀金沙或将成为成都改善客户的优选。这一点从亮相后的市场关注度上便可窥得一二:自项目示范区呈现以来,每天到访的客户量均超预期。
据悉,中绿园领秀金沙首批次已取证,162套臻品房源已全面上线,目前正火热预定中。
预售证号:蓉预售字第510105202368316号