高端作品发力,国贸地产交出超预期答卷!
厦门日报
近年来“岛内大提升”成为厦门建设开发的重点,岛内也涌现了一批商品房项目。而在今年,由国贸地产、中海地产、联发集团合作打造的五缘湾天琴海项目成为了楼市焦点:3月26日,天琴海项目首度开盘便去化9成,收获52亿的销售成绩。一个月内,天琴海梅开二度气势仍然当红,当日劲销17亿。单月劲销72亿,登顶销量榜首的同时,天琴海项目最后一栋高层应市加推,也成为市场受瞩目的网红盘之一。
天琴海的热销,除了来源于得天独厚五缘湾内湾核心位置、东南面湾海双景外,还有国贸地产在高端项目不断自我迭代的产品力。
这其中,国贸地产及其高端产品系「天琴系」的成功之道值得一探究竟。
国贸地产稳扎稳打
不断创新审美迭代
国贸地产深耕厦门36载,于厦门大本营不断进行产品自我迭代,2022年末国贸地产发布“海洋生活美学”理念,再一次引领新的审美。众所皆知,厦门被誉为“海上花园城市”,伴随特区成长起来的国贸地产于美丽的鹭岛提取大海中最惬意、最美妙的三个画面“海洋、森林、岛屿”,并将其融合,这就是“海上森屿”。海上森屿又包含三重美学架构:形式之美、场景之美、生活之美。
兼具国际化的审美,同时具有东方化的神韵,以海洋之名,打造高颜值、高感知和高体验的居所,这一产品美学理念,贯穿了国贸地产目前已构建的原系、上系、天琴系三大产品系列。而对标世界的产品实力,又在其定位高端的「天琴系」产品线上得到全面展示。
精研客户需求
布局完善三大产品体系
国贸地产始终践行国企担当,与鹭岛同频共振,回归客户需求,换位“客户思维”。为此,国贸地产建立了一支专业的客研团队,挖掘客户需求和痛点,将客户需求转换成产品价值点,帮助项目寻找定位的突破点,建立产品差异化优势,确保产品定位精确,强化产品竞争力,打造引领市场的产品,正是国贸客研的核心价值所在。
特别在厦门,国贸地产积累三十余载经验,客户体系构建方面,注重客户地图的网格化精细度升级和细分客户的动态需求分析,敏锐捕捉消费群体的需求与变化,前置思考客户需求,打造了一个又一个“爆款项目”,形成了“原系,上系,天琴系”三大产品系。
如当前位于翔安新会展的市政·国贸海屿原项目就是原系最新代表,以“海上森屿”的产品美学打造,用海洋生活美学为城市注入时尚和活力。海屿原项目示范区一经开放,便吸引众多业内人士前往考察,在今年的3月份荣获“2023缪斯设计金奖”这一殊荣。
市政·国贸海屿原示范区实景图,不做交付承诺
而作为上系代表的漳州国贸珑上,根植漳州古城文脉土地,将漳州文脉提取重构,打造有时间沉淀和独特品味的产品。国贸珑上以古城为命题,借助双燕齐飞等手法,演绎东方美学。而国贸珑上于2022年首开便引爆市场,实现了一年内从拿地到清盘的“国贸速度”,这也是漳州市场少见的。
漳州国贸珑上示范区实景图,不做交付承诺
而作为国贸地产旗舰产品的天琴系,只臻选核心城市的核心土地,并把海洋生活美学的城市观、人居观融入其中,天琴海便是最好的范本。市场成绩也给出了最佳佐证,天琴海不仅登顶厦门销冠,更是破福建纪录。
个个项目都是爆款,这足以说明国贸地产对客户需求的精研以及三大产品系的成熟度。
产品不断升级迭代
持续布局高端市场
3月底,位于五缘湾的天琴海首次开盘,约52亿的热销成绩创下了福建单盘首开最高纪录。而截至目前,天琴海所有楼栋已经全部推售,住宅销售也进入尾期,仅剩余少量房源。
据中原地产厦门研究院公布的数据显示,今年1-5月厦门商品房成交金额榜,天琴海项目蝉联榜首,而在榜单中更有一个显而易见的现象:前8名中,国贸地产旗下项目占据5席(分别为:天琴海、学仕里、保利·国贸天琴、中海·国贸上城、保利·国贸沁原)。
市场认可背后,是国贸地产在产品力的不断迭代,其中天琴海、保利·国贸天琴均为国贸地产高端产品天琴系的代表之作。就在去年,由克而瑞研究中心发布的《2022年度中国房企产品力测评》报告中,国贸地产「天琴系」荣获“2022年全国十大高端住宅产品系”。
而国贸地产在高端产品的布局,却已是积淀已久,回望鹭岛的20多年奢宅史,会发现始终有国贸作品,从中我们也看到了国贸地产高端作品的不断迭代:
1999年,对望白鹭洲的国贸花园,就已经有了小区瓷砖硬化的路面、人车分流的概念,要知道那个年代厦门平均每100人才有1辆车。
跨过2004年,人居有了景观改善的概念,位于鹭江道的国贸金海岸、国贸信隆城应运而生,收藏此时鹭岛最具代表性的景观。
当市场多数派还停留在门头、社区比美比艳时,滨北国贸春天引领了地标立面。以当时的技术标准做了几乎惊艳的效果,后来在五缘湾外湾等地方,不少建筑都能看到“春天”的影子。
2008年国贸天琴湾将景观、用材、户型设计、生活方式融合,国贸天琴湾也成为了鹭岛高端住宅的代名词。国贸地产始终以超前的设计理念,不断引领鹭岛高端住宅。
以上每一次奢宅跨越代际,从湖居、海居、山居、到湾居,国贸地产始终以超前的设计理念,不断引领鹭岛高端住宅。
国贸地产潜心研究高端住宅十余年,把对于高端人群的深研成果注入于天琴系。“只定制,不复制”的作品理念,坚持对城市核心土地的资源占位,引领趋势的国际审美等产品观,使得天琴系不断刷新城市及高阶人士的奢宅生活标准,同时成为城市核心地段的地标代表。
天琴系的成功,并不是一蹴而就,更多的是国贸地产在高端作品上的不断积累。
天琴海示范区,不做交付承诺
屡创纪录的背后
是产品不断升级
天琴海作为2023年天琴系全新巨著,落子五缘湾主场,打造湾海双景的高端住宅,同样集天琴系大成于一身。天琴海遵循天琴系一贯的封面择址,城市重量级资源环绕,周边邻国贸天琴湾、国贸新天地等豪宅,近看内湾风景静谧,远眺澎湃外海。带着天琴湾曾经的辉煌,天琴海也给出了更高水准的呈现:一方面是亮眼的市场成绩,3月底,天琴海首次开盘,约52亿的热销成绩,创下了福建单盘首开最高纪录。另一方面是迭代的产品力,融合了国贸地产最新的“海洋生活美学”理念表达,引领五缘湾新的审美。
天琴海效果图,不做交付承诺
天琴海为湾区近5年来少有的方正地块,总建面约16万方,更好承载古典庄园的园林大境。最大约“50米X150米”的楼间距排布,三栋大平层转角45度L型排布,东南向湾海双景同时映入眼底,为鹭岛高端人居的卓然不同划定标准。
天琴海示范区,不做交付承诺
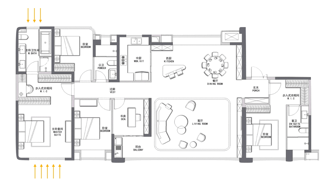
在户型设计中,天琴海也给出了湾区近乎满分的答卷,如建面约215㎡天樾户型,用大面宽+短进深的设计,为五缘湾带来罕见的通透大平层。南向瞰景面合计约22米,超越岛内同等面积的户型面宽。户型同时做到了“全明”采光,通透的11室,全屋无暗房。
装修创意效果图(过程稿)
墅级空间设计理念,在平层之内构造出类墅的生活方式。双主卧分布户型两端,照顾多代人起居。极致的户型设计,使得在五缘湾一步到位的置业需求,被完美锁定。
装修创意效果图(过程稿)
而建面约258㎡藏品级大平层,270°游艇级观景角度,东南向超35米的寰幕湾海景观,全屋9向湾海景观、13向瞰景视野。
装修创意效果图(过程稿)
叠加约80㎡的端厅设计,从户型格局可见产品考究,也不负众望的成为营造改变厦门未来十年甚至更久的生活方式的代表作。
近几年,限价政策让开发利润压缩,优质高端住宅的开发并不多见。继万科湖心岛、恒禾七尚、国贸天琴湾等经典奢宅作品之后,岛内优质作品断档多年,天琴海的出现,不仅引领了岛内高端改善的楼市大旗,更是国贸地产在奢宅市场统治力的完美体现。
据悉,天琴海已近售罄,目前仅少量建面约185-258㎡大平层,将成为入主五缘内湾的最后封藏。用心耕耘每一处土地,让产品经得起时间的考验。今天的国贸地产,正以国企的实力与责任,用高品质产品的坚守与初心,为厦门的美好生活赋能。