新浪财经

地铁规划透露重要信号深圳的焦点原来在这

来自雪球

关注

来源:楼市头条

历史的转折点,都在微小细节中诞生。

近日,深圳地铁五期规划获批,投资总额将高达1911亿元,涉及180公里的地铁运营里程,突破深圳地铁建设纪录。(来源:深圳市住房和建设局官网)

不同的地铁线路有着不同的价值使命,其中也隐藏着诸多的楼市发展机遇:

一场关于龙华的华丽蝶变show,即将上演。

01

-

龙华获批3条地铁

妥妥大赢家

不同的规划政策,已标明了每个区域未来的不同命运。

作为一线城市,深圳的每一公里地铁线都能拉动未来GDP数值的飙升。这一次,龙华对于未来的野心,更是彻底地暴露了出来。

1、龙华的地铁规划密度很大。

涉及龙华的线路最多,足有3条,整个龙华足足要新增30个站点。(来源:深圳市住房和建设局官网)

2、这3条地铁线路,每一条都意义重大。

22号线,不仅是快线,还是一条贯穿深圳的南北大动脉;

25线,覆盖了龙华过往的轨道盲区;

27号线,让龙华中心到南山前海中心只需要45分钟。

3、这还只是龙华地铁线路铺排开来的前奏。

根据规划,龙华未来至少将拥有11条地铁线,一跃成为深圳地铁密度最大的区之一。(来源:深圳市住房和建设局官网)

而追寻蛛丝马迹,官方对龙华力捧之心的确是早已露出。

1、除了密集的地铁线路,深大和深惠两条城际线也已开工(2026计划通车),未来几年,龙华轨道交通将会迎来大改观。

2、深圳美术馆新馆(建设中)、深圳图书馆北馆(建设中)、演艺馆、展览馆等休闲文化配套,已经开馆的龙华简上体育综合体,正在进行改造提升的龙华公园、龙华文化广场……大量顶级市政配套的落地,让龙华的居住氛围日益成熟。

3、龙华的商业配套同样令人羡慕。根据综合开发研究院统计,购物中心经营面积TOP10和购物中心月均客流TOP10榜首都在龙华。(数据来源:综合开发研究院)

以此种种,政府毫不掩饰的偏爱,对于龙华的未来,大家自是懂的都懂。

02

-

把握龙华新机遇

三大指标首选壹成中心

龙华作为深圳的地理中心,无论上班、生活、交际圈,都比普通区域更有延伸度。

如今政策的倾斜,更将赋予龙华全新的城市格局,片区迎来红利兑现浪潮,以及生活方式的进阶。

对于市场来说,当下,不失为瞄准龙华未来、上车的绝好时机。

不过,买家也犯难,都想知道,哪里能赢得更多?

其实,历经过前两年楼市的大起大落,市场经验总结了置业三大原则:

1、安全性

2、成熟性

3、稀缺性

细看龙华区各项目,壹成中心完美满足以上三大原则。

安全性

业内标兵缔造的红盘

壹成中心的缔造者——鸿荣源,赋予了项目无可比拟的安全性。

作为一线城市,深圳人对人居产品的挑剔是出了名的,能够进入深圳人法眼的开发商不多,鸿荣源算一个。

作为一家深耕深圳、擅长高端住宅打造的品牌开发商,鸿荣源旗下产品一直为业内所称道。大家耳熟能详的熙园、壹方中心玖誉、熙园山院等豪宅都出自鸿荣源之手。

这些安全性展示在壹成中心身上,就是鸿荣源会延续其一贯的产品力、对品质的高要求,在龙华树立一个醒目的人居地标。

成熟性

前瞻布局的时间差优势

很长一段时间里,置业者们都沉迷于地段论。掰开来看,地段论中的“地段”更应该指向具备有未来成长价值的城市繁华空间。

壹成中心具备跟随龙华兑现红利的未来,更有抢先布局带来的天然而无法填满的时间差。

前瞻性的布局,让壹成中心领跑龙华10年。

例如,在其他区域因为一条地铁开通而欢呼时,结合规划中的站点,再加上现有的紧邻壹城中心十区的4号线“龙华站”,壹成中心业主享受的是4条地铁线加持。

在很多项目期待一所便利店的入驻时,壹成中心坐拥深圳最大体量的城市集群型商业。

整个壹成中心的商业建面约60万平,分壹方天地A\B\D\E区、C区龙华壹方城等,逾1000家高端品牌进驻

这里还有龙华首家山姆会员店、深圳最大IMAX影厅的世纪新天影院、IFLY风洞飞行体验店、FLOWLIF拓极滑板冲浪、朗玩ROUND1等。

凭着超强的自我配套能力,壹成中心成为龙华最成熟的住宅区,不仅业主的幸福指数足于羡煞旁人,还能享受这些丰富配套带来的高溢价。

稀缺性

龙华国际商圈的想象力

人无我有,人有我优。在安全性和成熟性之上,楼市终极PK的是对稀缺资源的占有。

壹成中心的稀缺性体现在哪?

作为总体量超过300万㎡的超级城市综合体,当别的项目还停留在“卖房子”这一层面时,壹成中心已经开始发挥自己强大的资源整合能力、商业运营能力、产品升级能力,整合商业、住宅、商务等多元旗舰集群,打造全方位居住生活圈。

例如,可比肩深圳顶流网红商圈前海壹方城的龙华壹方城,一大批“深圳首店”“华南首店”甚至“中国首店”,都开在壹成中心业主家门口。

春节期间,壹方天地力压广州的天河城、花城汇,上榜北上广深购物中心热度TOP5,“烟火气”持续升腾。(数据来源:腾讯位置服务)

而且,这样大型的综合体项目,一般和城市规划紧密相联系,对于城市格局影响深远。

壹成中心未来还将以C位之姿,引领龙华国际商圈的兑现和落地。

规划显示,龙华将打造一个建面超200万平的超级商圈,相当于 1.5个香港铜锣湾,23个万象城。这也是深圳继香蜜湖和后海商圈之后,另一大世界一流湾区的顶级商圈。

因为领跑龙华乃至深圳,壹成中心具备远超行业的价格优势,销量也多年来保持着遥遥领先。

03

-

壹成十区

藏在壹成中心的“宝藏机会”

从一纸蓝图到实景呈现,壹成中心领先了龙华10年。

在市场波动的当下,壹成中心具备安全性、成熟性、稀缺性所带来的诱惑力与未来的上升空间一下子就凸显了出来,每有推出必定热销。

如此用心运营的百万方大盘,对于产品的打造自然也有更高的追求。以项目目前在售的十区产品为例:

1、地块位置非常好。

临近商业A区、靠近地铁口,和4号线龙华站直线距离约500米。

2、围合式小区,拥有1万㎡的园林。

闲暇时,换身装备,下楼就可以跑起来,在诗意中挥洒汗水;晚饭过后,一家人也可以携手散步,领略天伦之乐的奥秘。

3、还打造了一个5900㎡的社区共享运动空间(建成后移交政府)

下班回家,当别人还在开车四处找球场时,你已和邻居在篮球场上酣畅淋漓地battle。

周末想锻炼,也不用远行,篮球场、羽毛球场、运动跑道,还有室内外赛事标准的体育主场……一应俱全,随你挑选。

你也可以带上孩子到儿童活动区寻找惊喜,沙包、滑滑梯、秋千等设施,让孩子恣意释放欢乐。

4、学校就在家门口,目送式上学。

龙华创新实验学校,其中小学36个班(已开学),初中24个班(预计2023年7月交付),以及2所幼儿园,从幼儿园到小学再到初中都在家门口,上下学接送不要太方便,每天可比别家孩子多睡30分钟。

在户型设计和交付标准上,十区同样深谙客户群体的需求:

1、户型面积段极为纯粹,高性价比的主力3房2卫,助力刚需家庭上车。

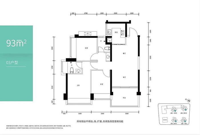
以约94㎡全明户型为例:

朝南设计,采光、视野极佳,楼间距开阔,可看园林,可远眺城市景观;

3.5米开间,带观景阳台,明厨明卫,没有暗房,采光通风俱佳;

3米层高,户内门通顶设计,窗户也是全面屏版,空间感更加阔绰;

主卧约12.5㎡超大套房,空间尺度阔绰,采光条件极佳;

公卫做了三分离,次卫则靠近次卧方便老人起夜,十分人性化;

大面积U型厨房,360度完成烹饪动作,预留冰箱位,可容纳双开门冰箱。

我还注意到,项目是市面上少见的在户型图上标注了尺寸的,每个房间的面宽、进深一目了然,足见鸿荣源对自家产品的信心。

2、带装修销售,TOTO的卫浴、美的的凉霸、卡萨帝三件套等,都是一线知名品牌。既保障了装修品质,也给购房者切实降低了购房成本。

现在,假如你想住在中心城区、追求生活品质、重视教育,还想要精装新房。我的回答是:可以安排!

不如来看看壹成中心十区这个传说中的“六边形战士”,会给你怎样的惊喜?

免责声明:

本广告内容仅供参考,不构成要约及开发商承诺,不构成交付标准。项目周边交通、商业等配套以政府规划及实际现状为准。商业业态、品牌、规模等介绍仅供参考,存在变动可能,具体以实际现状为准。学校的学区划分、入学条件等以政府部门政策和学校通知为准。买卖双方权利义务以双方签署的买卖合同等为准。

加载中...