主体造价32万,16×15米二层现代别墅
住宅公园
今日精选特价图纸
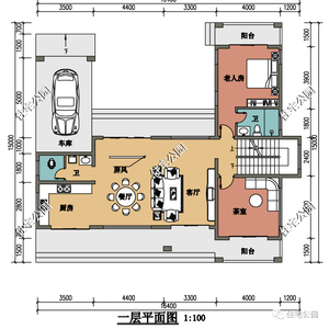
这套经典的二层现代风格别墅,占地为157.59㎡且为砖混结构,按照砖混结构平均造价计算,主体价格仅需32万就能建成。这栋房子不仅造价不贵,内部布局也是舒适合理,能满足大部分人的居住需求。
【平面布局图】:
今日精选特价图纸
这套经典的二层现代风格别墅,占地为157.59㎡且为砖混结构,按照砖混结构平均造价计算,主体价格仅需32万就能建成。这栋房子不仅造价不贵,内部布局也是舒适合理,能满足大部分人的居住需求。
【平面布局图】: