新浪财经

7月北京房价地图:市场韧性较强,房价环比微涨

中指研究院

关注

https://m.cih-index.com/products

7月28日,中共中央政治局召开会议,强调“要稳定房地产市场,坚持房子是用来住的、不是用来炒的定位,因城施策用足用好政策工具箱,支持刚性和改善性住房需求,压实地方政府责任,保交楼、稳民生。”全国楼市政策预计将保持宽松基调,市场不稳,政策不止。

不同城市的市场基本面和需求支撑力度存在差异,市场恢复节奏也有所不同。城市分化及城市内部区域分化或将是未来房地产市场的主要趋势。为了给市场参与者提供更多数据信息,中指研究院基于百城价格指数绘制了主要城市房价地图。

本文为北京房价地图,北京作为一线代表性城市,市场韧性较强。近期北京针对性优化老年家庭购房政策,亦释放积极信号。我们进一步选取典型样本项目进行分析,从区域微观角度反映城市住宅价格状况和市场表现,为各界提供参考。

更多房地产市场研究,复制链接获取 https://m.cih-index.com/products

中指产品:https://m.cih-index.com/products

7月,北京二手房市场活跃度延续,市场量价环比上升。7月北京疫情形势进一步好转,二手房市场成交活跃度延续,成交量超1.2万套,环比增长超10%,但同比仍有所下降。价格方面,7月北京二手住宅价格环比上涨0.34%,涨幅较上月有所扩大。当前,北京疫情防控形势整体较好,二手房市场需求稳步释放,市场保持平稳恢复态势。

中指产品:https://m.cih-index.com/products

受传统销售淡季等因素影响,7月北京新房市场供需双降。供应方面,7月房企取证推盘节奏明显放缓,新建商品住宅供应面积环比降幅超60%。需求方面,7月北京新建商品住宅成交面积环比下降超30%,同比下降约45%。价格方面,7月北京新建住宅价格环比上涨0.27%,涨幅较上月扩大0.21个百分点。

# 中指 · 北京典型样本项目 #

北京作为核心一线城市,住房需求旺盛,而市场中不同项目的品质有所分化,购房者通常会面临选择难题。为了监测城市住宅市场走势以及产品升级方向,引导购房者投资置业,中指研究院进一步从百城价格指数样本楼盘中选取典型样本项目进行分析,以树立城市地产品牌和区域项目旗舰。本月,我们选取了4个典型样本项目,分别是路劲旭辉·公园和御、中海寰宇视界、金隅昆泰·云筑、未来公元

路劲旭辉·公园和御

顺义主城 仁和公园 品质洋房

地铁旁+主城醇熟配套+高品质精装洋房

【区位】公园和御位于顺义主城、仁和公园旁,项目北靠约22万平仁和公园,在R4号线(规划中)和15号线双地铁加持之下,快速连接望京、三元桥、国贸CBD、朝青等商圈。

【规划】项目致力于在顺义主城板块打造高端品质公园洋房社区。整体地块格局方正,规划14栋9-11层的低密洋房,共计802席品质住宅。整体采用现代风格设计,以高级灰及米白为主色调,通过大面积玻璃元素(转角窗+落地窗设计)与金属线条相融合,体现简约大气、时尚轻奢的气质。约5米高的入户门头延续了简约现代的设计风格,又以金属线脚刻画精致细节,为业主营造既高雅尊贵又温馨舒适的归家体验。

【户型】项目主力产品为建筑面积约72-115㎡全功能型两居、三居户型。

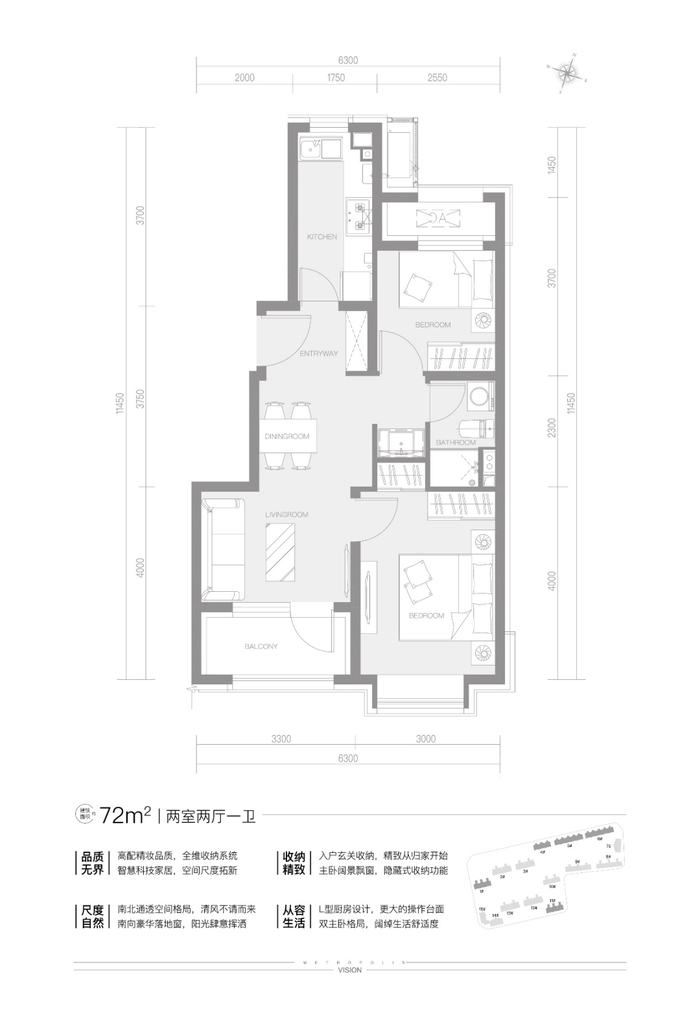
中海寰宇视界

西南五环 地铁旁 精装科技大盘

丽泽西+地铁上盖+二至四居奢装先锋住区

【区位】寰宇视界项目择址西五环永定河畔大葆台别墅区,距离地铁房山线稻田站仅约200米,6站即可直抵丽泽金融商务区,快速串联丰台科技园、丽泽、中关村、国贸等区域。

【规划】中海寰宇视界项目是中海悦燃系2.0升级产品,汲取波士顿学院派建筑风格,打造红砖立面建筑,园林依地就势,构筑台地式园林景观,打造邦克山花园、约5000平伊莎贝拉庭院中央丽景花园、室外会客厅及占地约1500平的全龄儿童游乐区——魔法学院,融合国际先进的STEAM学科成长理念,关注0-12岁儿童的不同成长阶段。精心打造800米波马环形跑道,沿途设置羽毛球场、健身加油站,满足健身需求。项目景观面积约3.9万平,绿化面积约2.6万平。

【户型】72㎡两室两厅一卫,一梯两户,南北通透设计,更大的窗墙比,独立玄关,餐厨相连,卫生间干湿分离,定制化收纳体系,新风、中央空调、科技智能化交付标准,打造京西高品质住宅。

135㎡四室两厅两卫,LDK布局,打造约50㎡中央社交场域,四叶草空间设计,餐厅面宽达5m,全明空间,主卧套房设计,独立家政空间,让生活更加惬意。

金隅昆泰·云筑

东四环高端品质改善社区

东四环主城+国企实力钜献+全维改善新著

【区位】金隅昆泰·云筑位于东四环十八里店朝阳港国际住区,距离地铁17号线仅约300米,北揽CBD、SKP、华贸中心顶级商圈,南连世界500强聚集地亦庄商圈,双核驱动,缔造都会生活新主场。

【规划】酒店式落客设计,营造渐进式归家礼仪;双入户精装大堂,汲取五星级酒店设计精髓;一环九庭森系园林,营造约400米健康跑道、4大主题公园、5大宅间花园等景观组团;超配会所,集日光泳池空间、未来成长空间、家庭和睦空间于一体,为全龄层业主拓展美好生活维度;现代简洁立面风格,勾勒国际都会质感;大尺度窗墙比,一席天幕尽揽朝阳,对位时代高阶审美。

【户型】建面约124㎡三室两厅三卫,两梯两户私密舒居,双动线入户;约12.1米南向三面宽,约5.6米全南向宽厅;全屋共三卫,几近全套房设计;U型明厨,烹饪动线合理高效,可容纳多人同时操作,空间利用率高。

图:124㎡三室两厅三卫户型

建面约152㎡四室两厅三卫,两梯两户私密舒居,双动线入户;LDK一体化,南向三飘窗,约5.9米大尺度宽厅设计;均衡四室,二胎家庭与三代同堂亦可兼顾,还原弹性生活空间;开放式餐厅,可容纳8-10人同时用餐。双主卧套房设计,双亲私享独卫,让每一代人的生活得到尊重。

图:152㎡四室两厅三卫户型

未来公元

未来科学城央 水岸科技华宅

未来科学城央+精装科技住宅+地铁现房

【区位】未来公元项目择址未来科学城东区核心,“三城一区”战略定位高。距离地铁17号线(在建)约150米,4站即可直达望京,快速串联未来科学城、望京、国贸、亦庄等区域。

【规划】未来公元,借鉴欧美国家“开放式街区”先进理念,连通地下一、二层商业业态,绽放多元商业的活力;社区商业,引入“环形水系绕城”设计理念,形成一线滨水商业景观带,打造滨水景观步行街;滨水景观商业,布局灵活,与片区其他商业辉映,筑起自然亲水商业区。

【户型】104㎡三室两厅一卫,四室向阳,双卧朝南,明厨明卫。私密双卧,动静分区,功能丰富布局合理,空间利用高,配有观景飘窗。

图:104㎡三室两厅一卫户型

169㎡四室两厅三卫,大面宽短进深,视野开阔,采光性好。三卧室朝南,舒适度较高。独立玄关,中西双厨设计。

图:169㎡四室两厅三卫户型

加载中...