新浪财经

5月北京房价地图:市场受疫情影响有所降温,但韧性仍在

中指研究院

关注

2022年以来,各地因城施策节奏明显加快,力度不断加大,更多热点二线城市加入政策优化行列。根据中指监测数据,今年以来已有超百城放松调控政策,5月政策优化次数超百次。但从政策效果看,短期除个别城市市场情绪有所修复外,多数城市市场情绪仍较为低迷,市场信心恢复不及预期。

不同城市的市场基本面和需求支撑力度存在差异,市场恢复节奏也有所不同。城市分化及城市内部区域分化或将是未来房地产市场的主要趋势。为了给市场参与者提供更多数据信息,中指研究院基于百城价格指数绘制了主要城市房价地图。本文为北京房价地图,北京作为核心一线城市,市场需求支撑较强,近期受疫情影响,市场虽有降温,但韧性仍在;我们进一步选取典型样本项目进行分析,从区域微观角度反映城市住宅价格状况和市场表现,为各界提供参考。

5月北京二手房市场受疫情影响出现降温。4月底以来北京疫情反复,多个区域实施临时管控,市场恢复节奏受到影响,二手房市场热度明显下滑。5月北京二手房成交套数环比下降约40%,月度成交量再次降至1万套以下。价格方面,受疫情短期冲击及经济形势承压影响,市场信心有所走弱,5月价格环比涨幅有所收窄。分区域来看,价格表现仍呈分化态势,东城、西城等中心城区价格表现较稳健,同比涨幅仍在9%以上;密云、平谷、延庆等远郊区市场表现仍相对偏弱。

5月北京新房市场供求双降,市场活跃度较低。供应方面,受疫情影响,5月北京新房取证速度明显放缓,房企推盘量亦明显减少,新建商品住宅供应规模环同比均下降。需求方面,5月北京新房案场到访量大幅回落,成交规模环同比均下降,市场活跃度较低。价格方面,5月北京新建住宅价格环比微涨0.10%,较上月收窄0.03个百分点。

# 中指 · 北京典型样本项目 #

北京作为核心一线城市,住房需求旺盛,而市场中不同项目的品质有所分化,购房者通常会面临选择难题。为了监测城市住宅市场走势以及产品升级方向,引导购房者投资置业,中指研究院进一步从百城价格指数样本楼盘中选取典型样本项目进行分析,以树立城市地产品牌和区域项目旗舰。本月,我们选取了3个典型样本项目,分别是龙樾合玺、中建宸庐北京学府壹号院

招商城建·龙樾合玺

望京辐射,大师著作,迭新创想

点式建筑+全龄社区+多元户型

【区位】龙樾合玺项目择址朝阳望京崔各庄版块,紧邻东北五环。随着朝阳土地越来越稀缺,望京崔各庄板块未来将具有较好的发展优势,龙樾合玺优越的地理价值也将进一步凸显。

【规划】龙樾合玺邀约城市豪宅缔造者HZS滙张思首席设计师张润舟、GHDA环球人居设计大师皮埃尔·阿兰、当代奢华新锐势力台北迦思设计首席设计师杨立琬联袂打造,以更国际化的立面,更挺拔的造型、更艺术的园林、更现代的空间,构建城市崭新建筑。

龙樾合玺打造独特的点式建筑,建筑密度较低,不仅加长了园林与室内空间的采光时间,而且实现了多角度园林观景。项目采用柔和的曲线包裹建筑,利用香槟金色铝板曲面线条,勾勒出建筑体量的层间关系。

【园林】龙樾合玺因地制宜,以全龄段人性化交融式体验为理念打造全龄化社区,采用多层次景观造园法,从园林规划到建设,精研每一处细节空间。园区内规划天空之境主入口、林荫冥想森花园、莫奈印象童乐园三大空间,以沉浸式泛会所、艺术园林助力美好人居迭代焕新。

【户型】125m²四室两厅两卫,方正户型设计,入户玄关位、独立餐厅位、独立家政区,三分离式卫生间,功能布局合理;全明格局三面采光,双明卫设计,北卧室开窗设计为朝东或朝西,突破传统,保证三卧室采光充足;打造入户玄关收纳、餐边柜收纳、主卧衣柜收纳、次卧衣柜收纳、飘窗收纳,五重收纳空间;北侧书房与卧室设计可拆除墙体,三四居任意转换,满足更多生活需要。

图:龙樾合玺125m²户型

175m²四室两厅两卫,采用两梯两户设计,80%得房率。户型方正,面宽及进深均12.8米,双明卫设计,四个卧室分布在四个角,优质四叶草户型,动静分区。汲取国际前沿设计理念,超大客餐厅58m²+西岛LDK一体化设计彰显宽厅墅境视野。

图:龙樾合玺175m²户型

中建宸庐

潮白政央,臻稀叠墅,境启闲适生活

顺义新城+臻稀四层叠墅+大尺度墅居+私享电梯

【区位】中建宸庐项目择址顺义新城政务区马坡板块,东侧毗邻潮白河,距离顺义区政府直线距离约1公里,优享醇熟区域配套。

【规划】项目打造中国诗意园林典范,营造都市低密诗意墅区。项目中轴对称布局,约150米长康文巷串联东西两个园区,园林内部规划“一环一纵,两横两心,九景五境”,洋房九景,叠墅五境,整体融合于墅区大境,在自然中享受静谧与惬意。

【户型】全生命周期礼遇,满足不同家庭需求。约10.5米朝阳宽境,空间尺度更舒适。卧室全朝阳,全景落地窗。约7.4米面宽大客厅,270°环境视野。私享电梯,多功能U型厨房,干湿分离式卫浴,奢华主卧套房,尊遇精致人生。

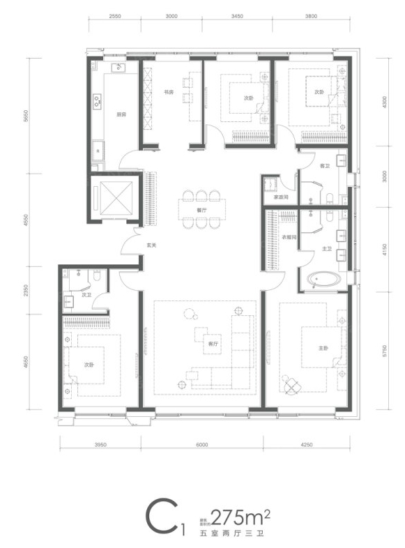
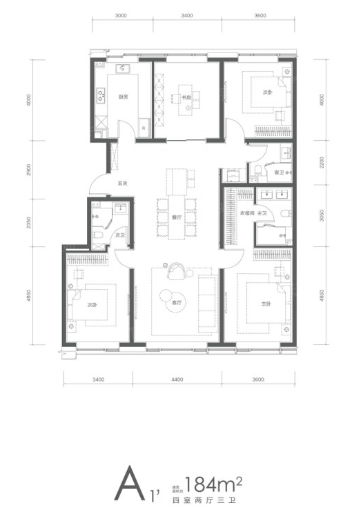
北京学府壹号院

西山脚下,科技新中式美学宅邸

海淀优质板块+丰盛配套资源+“科技感”新中式低密洋房

【区位】学府壹号院位于海淀区核心板块,择址于三山五园的西山脚下,与圆明园、颐和园相融相生,且由树村郊野公园环绕,打造出一座中国皇家园林中的当代低密美学宅邸。同时项目与北京大学等知名学府近邻相望,与中关村软件园、上地信息产业基地毗邻,将城市繁华、人文谧境与自然鲜氧紧密链接,成就美好生活居境。

【设计】项目遵循传统文脉肌理,提取传统歇山式屋顶,并结合不同材质的运用,将传统形式在当下实现全新的演绎,重新定义“科技感”新中式美学宅邸,以建筑的恢弘低碳、人性化园林设计、5-6层低密洋房,彰显国际都会人居锋尚。

【户型】184m²四室两厅三卫,户型方正对称格局,南北通透,南向三面宽,卧室客厅动静有序。双套房空间设计,主卧步入式衣帽间,北向独立书房,私享静谧时光。餐客厅一体化设计,兼顾实用与舒适性,打造欢聚乐活空间。

220m²五室两厅三卫,理想舒阔户型,规制方正通透,南向双套房设计,近6米阔綽客庁,客厅、餐厅、厨房串联设计,兼具家庭与社交功能满足。四叶草式空间布局,动静分明,私密有度;北向次卧、书房独立空间,舒居静逸,蓄养品位。

275m²五室两厅三卫,对称通透格局,方正户型。南向约14.2米面宽,客厅、餐厅、厨房连通布局,奢华套房式主卧,高定卫浴、独立衣帽间,四叶草式空间布局,动静分明,私密有度。

加载中...