新浪财经

杭州顶豪红盘,新世界江明月朗园领证!超7万㎡滨水公园亮相钱新2.0

媒体滚动 2022.05.28 16:15

规划9幢高层住宅 精装限价40000元/㎡

杭政储出[2022]11号项目位于杭州市滨江区浦沿单元,项目东邻规划诚业南路,南接东冠路,西邻许家河绿化,北至规划冠新路。

2022年4月25日,由绿城以272630万元总价竞得,楼面价为24504元/㎡,溢价0%。新房精装限价40000元/㎡。

该项目总用地面积为46358㎡,总建筑面积为154219.2㎡,地下建筑面积为42960㎡,地上建筑面积为111259.2㎡,建筑密度21.9%,容积率2.4,绿地率35%。

根据公示,规划9幢21F-26F住宅,除此之外还将规划300㎡泳池,室外集中绿地等户外活动场所。

周边楼盘:花样年浦乐单元项目、金瀚滨玺云筑

绿城下沙元成项目公示

拟建造6幢高层 精装限价27500元/㎡

下沙元成单元JS02-03-R21-01地块位于杭州市钱塘区下沙元成单元,项目东至文思幼儿园,南邻金乔街,西接海达北路,北临新南路。

2022年4月25日,绿城以90813万元总价竞得地块,楼面价为14366元/㎡,溢价10%。新房精装限价27500元/㎡。

该项目总用地面积为25285㎡,总建筑面积为88490.7㎡,地下建筑面积为25278.2㎡,地上建筑面积为63212.5㎡,建筑密度22%,容积率2.5,绿地率35%。

根据公示,项目拟规划建设6幢26F高层住宅,还将在小区中间设置集中绿地,项目共设4个出入口,层高3米。根据鸟瞰图,可观察到外立面呈浅银色搭配深色玻璃,整体设计较为简约。

周边楼盘:广宇元成单元项目、德盛东苑

新增周末好去处!超7万方

规划人工湖、文体中心的公园亮相

四堡七堡单元JG1402-37地块居住区文化体育活动中心、JG1402-38地块公园及地下社会公共停车库及JG1402-39地块居住区配套公共服务设施位于杭州市钱江新城2.0板块,项目西邻御五路,东接明月桥路,南邻凤起东路,北至昙花庵路。

项目规划总用地面积为73919㎡,总建筑面积为65505㎡,包含文体活动中心、公园、人工湖以及地下停车场。

其中文体活动中心规划用地面积为7700㎡,地上计容建筑面积达15440㎡,项目高度23.9米,拟建2幢5F建筑。

根据规划,项目还将规划一个人工湖、景观庭院等,项目建成后将成为周边居民甚至杭州市民的周末休闲去处。

周边楼盘:观翠揽月府、栖江揽月府

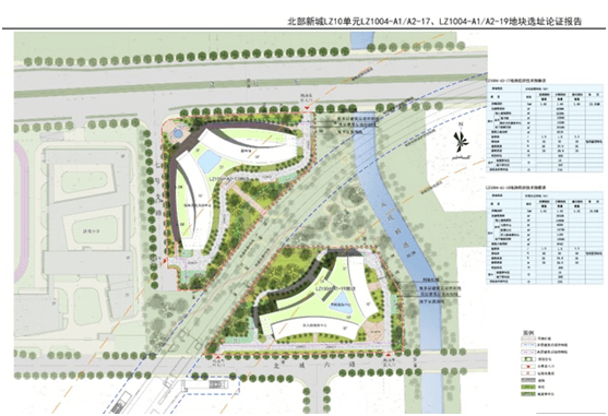
杭州良渚新城市民中心、图书馆选址论证

规划项目位于杭州良渚新城,东至元庆桥港西侧绿带,南至北城六路,西至七号支路和规划公园绿地,北至良运街,总用地面积2.81公顷,共包含两个地块。

早在3月份,该项目就发布过招标信息,LZ1004-A2-17地块即是规划的市民中心项目,位于勾良路南元庆桥港西地块,规划用地面积为14864㎡,主要建设内容包括功能服务区、公共服务区、行政管理区、地下停车场等。

LZ1004-A1-19地块是规划的图书馆项目,位于北城六路北元庆桥港西地块,规划用地面积为13223㎡,主要建设内容包括阅览空间、培训空间、公共空间、配套设施、地下停车场等。

项目点评:项目位于良渚新城核心区,交通位置非常便利,地铁4号线好运街站就在项目南侧。周边楼盘较多,华润万象城、万科前宸等都是红极一时的楼盘。目前星创城在售,价格29000元/㎡左右,另外有5个待售项目,分别为越秀地铁勾庄车辆段上盖项目、绿城勾庄勾阳路项目、万科勾庄项目、绿城勾庄好运街项目、绿城良渚新城项目。

拱墅大关单元12班中学启动

大关单元GS0507-A33-09地块八丈井东中学项目位于杭州市拱墅区大关单元内,东至大关南一苑北区,南至大关南一苑东区,西至杭州通信器材市场,北至八丈井东路。项目投资估算62000万元,建安工程费用约12000万元。

项目将建设12班中学,包括校舍建筑、地下建筑、体育活动场地、绿化、道路广场及其他配套设施等。总用地面积约8192㎡,总建筑面积约20000㎡。

小编点评:八丈井东中学项目附近居住区汇集,学校建成之后能完善周边的教育资源,区域内的基础教育教学也正向着优质均衡的目标阔步前行。

加载中...