价格倒挂3万/平,打新网红盘即将重返深圳楼市
界面新闻
文 | 番茄君
近日,深圳市住建局公布了今年第二季度计划入市的新盘名单,与计划入市7509套房源的第一季度相比,第二季度共有29个住宅、8个公寓预备入市,预计提供19050套房源。
二季度待入名单 图片来源:深圳住建局官网
从第二季度待入市的住宅区域分布来看,福田区共有5个,分别是航运红树湾府、湾尚庭玺家园、湾尚骏玺家园、佳园、海德园A区;
罗湖区2个,分别是青湖山庄1号楼、独树阳光里;盐田区仅有鹏瑞南区尚府这一个项目;
南山区5个,分别是汉园茗院A区、招商仕林臻邸、伴山伴海广场;宝安区5个,分别是招商雍和府、佳兆业凤鸣水岸、宏发悦云,深铁璟城;
龙岗区4个,分别是合正方州泓园、勤诚达誉府、新霖荟璟花园、里城玺樾山花园;龙华区4个,包含壹城时尚花园、卓越和奕府(一期)、鸿荣源博誉府、中海学仕里;
坪山区2个,分别是深业山水东城花园1-6栋、碧湖春天南花园;光明区3个,分别是光明万悦山璟庭、观月台、深业云筑(一期)。
在这批待入市的住宅中,最受关注的莫过于福田豪宅海德园A区,项目预计提供135套住宅。
除了海德园,位于南山蛇口的伴山伴海广场也在二季度的名单内,此外,还有光明宏发万悦山璟庭、深铁璟城等预备入市。
海德园A区
库存量:135套
参考户型:89-248平方米
参考均价:12.6万元/平方米
去年11月26日,海德园A区举行线上选房活动,181套房源共入围了504批客户,最低入围积分为62.2分,均价12.6万元/平方米,主推建面约121-296平方米的户型,总价1300万元/套起,开盘售罄。
作为福田的热门豪宅项目,海德园之所以受关注,源自于好位置+好学位+打新。
首先,它位于福田香蜜湖片区,距离安托山地铁站不到500米,周边有多条主干道环绕,交通非常便捷。
其次,它的小学和初中学位分别被划分在红岭实验小学、深圳高级中学南校区。其中红岭实验小学就在小区对面,而深圳高级中学南校区教学质量高,在深圳教育体系里知名度很高。
而海德园周边的居住环境也很优质,万科瑧山府、安峦公馆等楼盘都是新建住宅,居住氛围好。
最后在价格方面,今年2月,同在香蜜湖片区的侨香村小区,由于刚刚获得红本,不受指导价限制,二手房源的挂牌价达到16-18万元/平方米上下。这一价格与已经入市、均价12.6万元/平方米的海德园B区相比,最低存在3.4万元/平方米的打新空间。
侨乡村二手房挂牌价 图片来源:乐有家
从户型设计上来看,海德园A区由6栋建筑组成,目前A区曝光的最小户型段为89平方米,被设计成三房两厅一卫,三梯五户的配置,比B区更容易上车。
海德园A区89平方米户型 图片来源:家在论坛
根据释出的户型平面图,海德园A区户型最大面积为248平方米,被设计成五房两厅五卫,两梯两户设计,非常豪华。
海德园A区248平方米户型 图片来源:家在论坛
剩下的还有143平方米、160平方米和195平方米的四房。
海德园A区143平方米、160平方米平方米户型 图片来源:家在论坛
海德园A区195平方米户型 图片来源:家在论坛
伴山伴海广场
库存量:254套
参考户型:109-143平方米
参考均价:10.14万元/平方米
伴山伴海广场位于南山蛇口港航程路北侧,在2号线和5号线交汇的赤湾地铁站C出口旁,目前已更名叫前海宸湾。
项目周边还在开发中,在前海宸湾对面,建有赤湾TOD商业综合体,该项目是集大型商业、办公、酒店、公寓为一体的综合体,建成后能改善片区的商业氛围。
学校资源方面,距离前海宸湾500米处有南山区第二外国语学校(集团)赤湾学校,1公里处还有月亮湾小学。此外,项目周边还有文天祥纪念公园、小南山公园以及天后宫等景点。
在价格方面,可以参考去年6月入市的半山臻境。这两个项目相隔不远,半山臻境备案均价为10.14万元/平方米,主推建面约115-180平方米的户型,备案的586套房源吸引了1103批客户认筹,开盘日光。
从目前流出的户型图来看,前海宸湾主推建面约109-143平方米的户型。
建面约109平方米的户型被设计成三房两厅两卫,竖厅设计,带有两个阳台。
109平户型 图片来源:家在论坛
建面约121平方米的户型被设计成四房两厅两卫,也是竖厅设计,拥有两个阳台。
121平户型 图片来源:家在论坛
建面约143平方米的户型也被设计成四房两厅两卫,同样是竖厅设计,拥有两个超大的阳台。
143平户型 图片来源:家在论坛
深铁璟城
库存量:1200套
参考户型:77-151平方米
参考均价:4.58万元/平方米
深铁璟城位于松岗松福大道与朗碧路的交汇处,是地铁11号线碧头站的上盖物业,一河之隔便是东莞长安镇管辖范围。
根据该项目用地的土地出让公告,深铁璟城毛坯入市均价不得高于4.58万元/平方米。
深铁璟城分为南区与北区建设。南区由13栋33-39层超高层住宅、14栋保障性住房、2层商业及公共配套、1座幼儿园(12班)组成,设一层地下停车库;
深铁璟城效果图 图片来源:家在论坛
北区由6栋多层住宅(6层)、27栋高层住宅(11层)、 1栋12班幼儿园、商业配套A、D区、泳池及配套用房以及三个人行主入口、及架空车库组成。
此外,项目自带6万平方米商业和一所九年一贯制的学校以及两所幼儿园,未来可实现家门口入学。
据悉,此次预计入市的为深铁璟城北区,从户型图来看,项目主推建面约77-151平方米的户型。
其中,77平方米的户型被设计成两房两厅一卫,相对部分楼盘79平方米的三房来说,实用率较低。
图片来源:家在论坛
85平方米的户型被设计成三房两厅两卫,动静分离。
图片来源:家在论坛
105平方米的户型被设计成四房两厅两卫,满足刚需家庭的居住需求。
图片来源:家在论坛
151平方米的户型也被设计成四房两厅两卫,空间比较开阔。
图片来源:家在论坛
宏发万悦山璟庭
库存量:678套
参考户型:79-118平方米
参考均价:4.89万元/平方米
宏发万悦山位于光明大道与华夏路的交汇处,与6号线光明大街站直线距离约850米,是万丈坡城市更新建成项目。
项目占地面积4万平方米,总建面约21万平方米,规划8栋商品房住宅、1栋保障性住房、2栋高层写字楼和开放式商业街区,可满足日常生活所需,周边还有星河天地、龙光玖龙台等项目商业可互补。
此外,项目1公里范围内,有东周小学、光明中学、实验学校、中科大医院和新城公园,配套较为齐全。
去年2月,一期项目万悦山名庭备案入市,均价4.89万元/平方米,毛坯交付,户型88-209平方米,推售367套房源。通过严苛的审核,最终共有1070批客户入围认筹,最低入围积分高达72.3分。
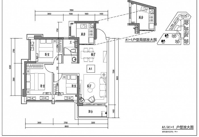
在万悦山璟庭此次计划推出建面约79-118平方米的户型。据悉,79平方米的户型被设计成三房两厅一卫,客厅配备了一个等宽的大阳台,整体来看空间分布较为合理,但从局部放大的厨房细节来看,该户型的厨房空间不是方正的布局。
79平户型 图片来源:家在论坛
89平方米的户型被打造成三房两厅两卫,共设计了B1和B2两类户型。其中B1户型的厨房空间同样不是方正布局。
89平B1户型 图片来源:家在论坛
89平B2户型 图片来源:家在论坛
这个户型段与一期同等的89平方米的户型可做四房相比,赠送面积少了很多。
118平方米户型被设计成四房两厅两卫,与一期119平方米的户型没有太大出入,此外二期的户型还被改成横厅设计。