新浪财经

最新资讯 | 海德园A区户型图曝光、沙湖御景花园规划图公示

界面新闻

关注

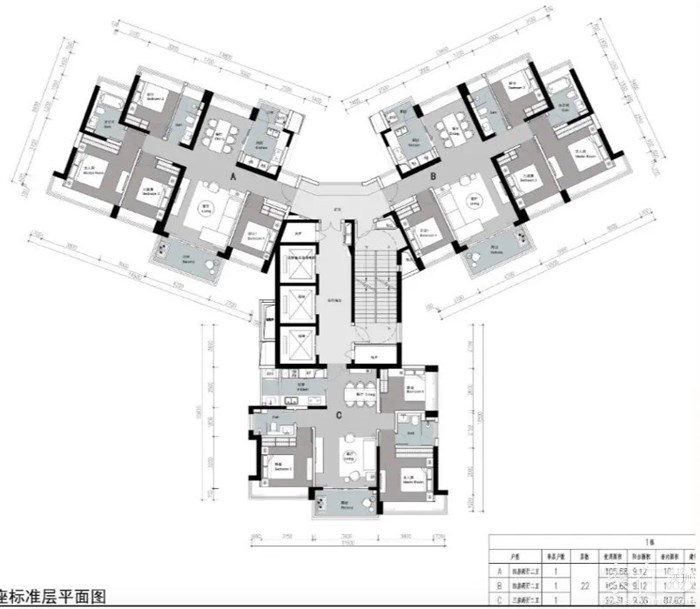
01.海德园A区户型图曝光,建面约86-449平,预计二季度入市

近日,深圳房地产信息网援引家在网友消息,曝光了海德园A区户型图,建筑面积约为86/89平方米、143平方米、160平方米、195平方米、248平方米、282平方米、425平方米、449平方米;

复式:243—252平方米(5栋A/B)、370平方米(1/2栋)、404平方米(3栋),住宅总共约600套,预计二季度入市。

海德园B区于2021年11月26日开盘,此次共有504批意向登记客,此次最低入围积分为62.2分。

推售房源共181套,约121-296平方米3-6房单位,备案建面均价12.6万元/平方米,均为毛坯交付;备案价格区间在11.46-14.41万元/平方米。

项目简介

项目位于福田香蜜湖安托山片区,北挨北环大道,东边为著名的万科臻山府,南边距离地铁2号线与7号线交汇处的安托山站,百度地图实测仅不到200米。

项目分为A、B两区,中间由规划道路安托山三路相隔,其中A区占地面积约3.02万平方米,建筑面积约17.47万平方米,容积率约3.44。

建筑面积中含住宅约9.52万平方米,其余的如商业、幼儿园、管理用房所占面积都很小,比较另人惊讶的是车库建筑面积约6.7万平方米,为除了住宅外的最大配比。

海德园B区建筑面积约5.8万平方米,主力户型面积约121平方米-296平方米的3-6房,使用率约71%。均为毛坯交付。机动车停车位432个(全部地下,含充电桩车位135个);住宅梯户:1栋3梯3户。

户型图:

02.建面15万平,992套住宅!沙湖御景花园规划图公示

日前(4月8日),深圳市规划和自然资源局坪山管理局发布了关于沙湖御景花园项目(G11319-0088号宗地)总平面图的通告。

沙湖御景花园坪山碧沙北路与坪山大道交汇处北侧,占地面积为2.58万平方米;总建筑面积约15.4万平方米,计容积率面积为10.9万平方米。

项目规划5栋住宅楼,最高的为33层;并配套有1万平方米的商业。

总户数为992户,其中小于90平方米的户型有866户;据了解,主力户型为72-112平方米的3-4房(带装修)

项目交通方面,距离地铁即将开通的14号线沙湖站约2公里左右,步行的话算是比较远的;远期规划还有地铁19号线汤坑站与项目邻近。

商业:坪山天虹,力高金街,佳华商业,益田假日广场,约80万平方米卓越旧改综合体(建设中)、约120万平方米华谊兄弟文化影视城。

今年2月份已公示了项目的桩基工程。

沙湖御景花园的开发商为深圳市德丰房地产开发有限公司,德丰集团于1999年成立于深圳,以房地产开发为主营业务,在惠州建设有七里香堤、五月花、凯旋城等超70个项目,其中五月花、七里香堤皆位于临深片区。

03.顺丰总部进入沙井!建面达41万平,效果图曝光

深圳房地产信息网援引家在网友消息,丰智慧物流科技产业基地将进入宝安。

据资料显示,今年,宝安将全力跟进服务顺丰、跨越速运、递四方、南航物流等重点企业,加速物流业在宝安集聚发展;围绕产业圈布局商贸圈,重点提升宝安中心区和沙井松岗片区西部城市中心的商贸能级;以发展产业金融为重点,推动“魏桥系”金融板块加快布局,引进杭州银行、宏信证券、华创证券等金融机构的市级分支机构落户……

丰智慧物流科技产业基地项目位于新桥街道,总用地面积10万平方米,总建筑面积41万平方米。

主要建设内容包括厂房,研发用房,商业,宿舍等。项目将打造智慧物流科技创新平台和产业发展综合服务平台,生产内容包含智能物流科技研发、“互联网+”创新产业服务、“快递+”智慧物流装备制造等三大块,建成后增加就业岗位超过8000个。项目完工时间为2024年。

此外,顺丰还有一栋顺丰速运总大厦项目,位于深圳市前海深港现代服务业合作区19单元03街坊05地块,楼高200米,占地6118.8平方米,建筑面积7.6万平方米,由德国gmp建筑事务所设计。

顺丰总部大厦的建成,成为一座既体现本地特色又富有创新精神的地标式建筑;目前已投入使用。

加载中...