新浪财经

正在公示!这里拟新建科研办公楼、演艺和体育场馆

媒体滚动 2021.12.21 16:01

原标题:正在公示!这里拟新建科研办公楼、演艺和体育场馆 来源:上观新闻

好消息!

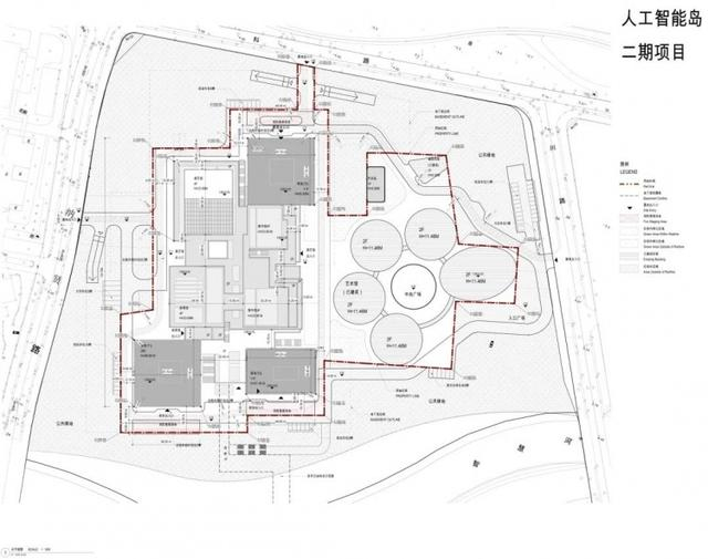
张江人工智能岛二期项目,设计方案规划正在公示中,详情如下↓

项目名称

人工智能岛二期项目

建设单位

上海张江(集团)有限公司

建设地址

东至川和路,南至智慧河,西至纳贤路,北至上科路

建设内容

科研办公、演艺馆、体育馆

用地性质

文化用地、体育用地、教育科研设计用地

反馈意见

公示方式

1.现场公示:项目现场

2.网络公示:http://www.pudong.gov.cn/shpd/

公示期限

2021年12月19日至2021年12月28日

反馈方式

如对规划草案有反馈意见,请于2022年1月1日前(以寄出邮戳为准)将书面意见邮寄或电邮至张江科学城建设管理办公室行政审批处,也可到项目所在地相关镇、街道反映。地址:上海市张东路1158号3号楼(注明项目方案公示意见),邮编:201203,电邮:zjgh@pudong.gov.cn。

责任编辑 倪莉琪

来源 浦东发布

加载中...