新浪财经

【便民】宝山区推出新一批区筹公租房房源!(附申请方式)

上海发布

关注

宝山区新闻办说,该区最新一批区筹公租房项目推出,共计60套房源,其中二居室A户型30套,二居室B户型15套,二居室C户型15套。本次公租房项目申请时间自11月1日开始,符合承租条件者可通过线上方式进行申请。详见↓

项目介绍

新一批宝山区区筹公租房项目-雍和府位于

宝山区罗泾镇潘泾路5777弄189号

小区实景图

    左右滑动查看更多    

户型介绍

01

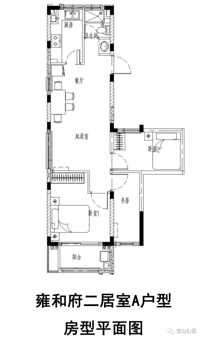
二居室A户型(87.33㎡/套)

具体配置:

客餐厅:餐桌、餐椅

主卧:衣柜、高箱床、床头柜、窗帘、窗帘杆、   空调

次卧:衣柜、高箱床、床头柜、窗帘、窗帘杆、  空调

厨房:油烟机、电磁炉、橱柜

卫生间:电热水器、浴霸、台盆、坐便器

(注:书房无家具配置)

02

二居室B户型(89.41㎡/套)

具体配置:

客餐厅:餐桌、餐椅

主卧:衣柜、高箱床、床头柜、窗帘、窗帘杆、空调

厨房:油烟机、电磁炉、橱柜

卫生间:电热水器、浴霸、台盆、坐便器

(注:次卧及书房无家具配置)

03

二居室C户型(93.99m2/套)

具体配置:

客餐厅:餐桌、餐椅

主卧:衣柜、高箱床、床头柜、窗帘、窗帘杆、空调

厨房:油烟机、电磁炉、橱柜

卫生间:电热水器、浴霸、台盆、坐便器

(注:次卧及书房无家具配置)

租金价格

二居室A户型(30套):

建筑面积:87.33㎡/套

租金区间:1863元~1981元/月

二居室B户型(15套):

建筑面积:89.41㎡/套

租金区间:1956元~2076元/月

二居室C户型(15套):

建筑面积:93.99㎡/套

租金区间:2056元~2183元/月

装配实景图

    左右滑动查看更多    

周边配套

公交线路

宝山6路、宝山31路、宝山81路、宝山86路

地铁

7号线美兰湖站

教育

罗泾镇第二幼儿园、罗泾镇中心幼儿园、罗泾中心小学、罗泾中学、罗泾中心校、民办肖泾小学、上海外国语大学附属宝山双语学校

医疗

罗泾社区卫生服务中心

商业

翼生活·睦邻小镇、华联超市、农工商超市等

哪些人群可以承租公共租赁住房?

1、以个人为主体:

(1)具有本市常住户口或持有《上海市居住证》达到2年以上并且在本市连续缴纳社会保险金1年以上(含1年);

(2)与本区单位签订1年以上(含1年)劳动合同。

2、以单位为主体:

(1)设立在本区范围内具有法人资格的机关、企事业单位或团体;

(2)申请职工应具有本市常住户口或持有《上海市居住证》;

(3)单位员工与该单位签订1年(含1年)以上劳动合同,并由单位承诺在本市缴纳社会保险金;

(4)租金由单位直接支付或单位提供担保后由员工直接支付。

3、个人和单位都应符合:

(1)在本市人均住房建筑面积低于15平方米,住房面积的计算标准按本市相关规定执行;

(2)未享受本市保障性住房政策(廉租住房和共有产权保障住房);

(3)本市、区政府相关部门规定的其它条件。

申请流程

申请时间:2020年11月1日起

1、网上申请:请登录公司官网(www.bsgzf.com.cn)首页进行网上申请,也可在“上海一网通办”平台申请;


2、网上审核:公司工作人员网上审核,通过后短信通知申请人;


3、提交材料:申请人按要求至公司对外受理窗口提交申请材料(原件和复印件);

窗口地址:宝杨路1369号房地产交易中心1楼9#公租房窗口

联系人:吴老师、周老师、娄老师

联系电话:56671727、56753025

4、资格审核:申请材料上报区住房保障机构审核,审核通过出具《宝山区公共租赁住房准入资格确认书》;

5、网上排队:短信通知申请人获得宝山区公共租赁住房准入资格,申请人登录公司官网(www.bsgzf.com.cn)进行意向房屋排队;

6、网上选房:申请人登录公司官网(www.bsgzf.com.cn)进行网上选房并预约看房时间;

7、现场验房:短信通知申请人具体看房时间,前往现场进行验房;

8、签订合同:短信通知申请人带好身份证原件至公司签订租赁合同(二年)并支付首期租金(微信支付、付三押一);


公司地址:盘古路572号1号楼402室

联系人:鲍老师、杨老师、李老师

联系电话:18917772501

9、办理入住:现场办理入住手续,签订安全责任书、公共事业费充值、开通智能门锁、领取空调遥控器、门禁卡、信报箱钥匙等。

后续房源推出预告


项目名称

项目地址

套数

预计推出时间

云麓之城

罗店镇罗太路869弄

60

11月底

金地天地云墅

顾村镇苏家浜路388弄

126

11月底

保利熙悦名邸

大场镇走马塘路1228弄

90

12月底

滨江公园壹号

大场镇塘祁路517弄

112

12月底

招商中环华府

大场镇丰皓路633弄

110

12月底

同济路60弄

吴淞街道同济路60弄

47

12月底


资料:宝山区新闻办

编辑:陈庚

加载中...